3万円以下
15万円
100万円以上
ルスリール
東急田園都市線二子新地駅地上8階建て築7年
Kolet武蔵新城#07
CASAPRIMAVERA
フジハウス
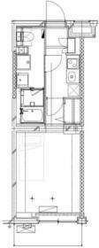
GENOVIA二子新地
東急田園都市線溝の口駅地上2階建て築19年
オープンブルーム二子
東急田園都市線高津駅地上6階建て築3年
高津区溝口6丁目戸建