3万円以下
15万円
100万円以上
ベラジオ京都一乗寺2
イーグルコート聖護院
プレサンス京大前
プレサンス京大南
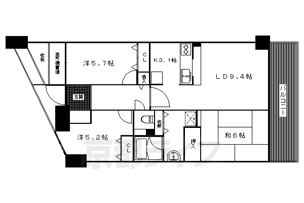
京都市左京区高野泉町 5階建 2026年築
ヴィラ岡崎
グランドメゾン修学院1番館
Brillia京都松ヶ崎
インベスト京都白川
プレサンス京都三条大橋東山苑
日生ハイツB棟