3万円以下
15万円
100万円以上
クレール郡山筒井
大和郡山市朝日町 9階建 1984年築
大和郡山市筒井町 4階建 1969年築
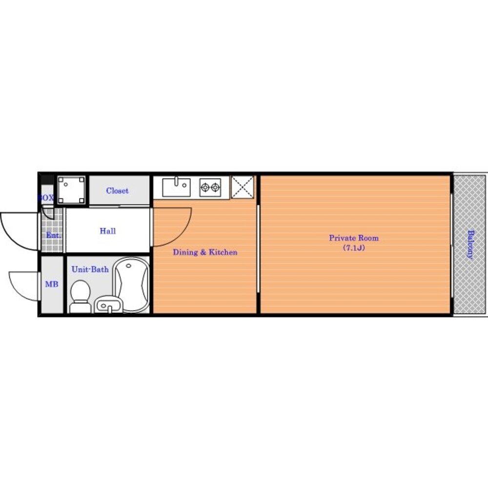
近鉄橿原線筒井駅地上10階建て築27年
近鉄橿原線近鉄郡山駅地上6階建て築40年
薬師寺アーバンライフ
近鉄橿原線九条駅地上7階建て築44年
筒井ハイツ