3万円以下
15万円
100万円以上
ジョイフルハウス岡山東
JOYFULHOUSE岡山東
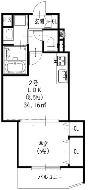
グランドゥール畷
四條畷市中野本町 3階建 2023年築
四條畷市岡山2丁目 3階建 2020年築
四條畷市岡山4丁目 8階建 1999年築
四條畷市中野本町 3階建 2019年築
四條畷市美田町 2階建 2011年築
クレメント岡山