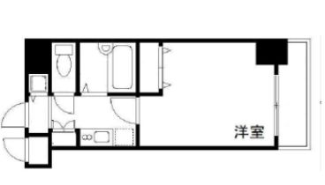
渋谷区笹塚2丁目 14階建 1998年築1K/12階/1205(東京都渋谷区 / 笹塚駅)の賃貸
1/29
1/29
8.7万円
初期費用を知りたい管理費6,000円
- 敷金
- 8.7万円
- 保証金
- なし
- 礼金
- 8.7万円
- 広さ
- 21.37㎡
- 階数
- 12階 / 地上14階地下1階建
- 間取り
- 1K
- 建物
- マンション (鉄骨鉄筋)
- 築年数
- 築28年
- 向き
- 南西
- 交通
- 京王線 / 笹塚駅徒歩4分
- 京王線 / 代田橋駅徒歩11分
- 小田急小田原線 / 代々木上原駅徒歩22分
- 住所
- 東京都渋谷区笹塚2丁目20-1
フレンテ笹塚 417m
ライフ笹塚店 246m
ファミリーマート 笹塚二丁目店 186m
コクミンドラッグ 笹塚駅店 272m
atman atman笹塚店 398m
らあめん花月嵐笹塚店 163m
無料で10秒! カンタンお問い合わせ

渋谷区笹塚2丁目 14階建 1998年築
敷
8.7万円礼
8.7万円特徴
バス・トイレ別
2階以上
エアコン付き
ペット相談可
駐車場あり
室内洗濯機置場
オートロック
洗面所独立
- バス・トイレ
- バストイレ別
- キッチン
- ガスコンロ対応、1口コンロ
- セキュリティ
- 防犯カメラ、オートロック
- 室内設備
- インターネット対応、エアコン、室内洗濯置お部屋の詳しい情報を知りたい
- 部屋の特徴
- 二階以上、角住戸、バルコニー写真を送ってほしい
- 共用部
- 宅配ボックス、エレベーター、駐輪場
- その他の特徴
- 駐車場あり、公営水道、下水、外壁タイル張り、分譲賃貸
無料で10秒! カンタンお問い合わせ

渋谷区笹塚2丁目 14階建 1998年築
敷
8.7万円礼
8.7万円同じ建物で掲載中の物件 (1件)
不動産会社からのコメント
解約時敷金償却1ヶ月/駐輪場代借主負担(使用時)/室内清掃費用借主負担
その他
- 駐車/駐輪
- 近隣 費用: 33,000円(税込) 距離: 106m / あり駐車可能な車種や台数を知りたい
- 入居時期
- 損保
- 住宅保険: 要
- 保証人代行
- 保証人代行: 必須 保証人代行会社: その他 月額賃料等の50%~100%(初回保証料)、2年目以降は1万円/年
- その他費用
初期費用を知りたい鍵交換費:18,700円
入居者サポート料2年間:22,000円
- 情報
情報登録日:2026/2/17
情報更新日:2026/2/15
次回更新予定日:2026/2/28
- 備考
- 償却金: 賃料の1.0ヶ月分(退去時) 契約期間: 2年
取扱い会社
- 取扱い会社
- アエラス中野店 (株式会社アエラス.PR)条件が近い物件も紹介してほしい
- 免許番号
- 国土交通大臣(1)第10782号
- 取引態様
- 仲介
- 所在地
- 東京都中野区中野5丁目65-6 山和ビル3 6階
- 電話番号
- 03-5345-6655
- 営業時間
- 10:00~19:00
- 定休日
- 年中無休(年末年始などを除く)
- 所属団体名
- 全日本不動産協会
おすすめ物件 (16件)
賃貸マンション
アルティローザ笹塚

京王線 / 笹塚駅 徒歩13分
新築 / 地上3階地下1階建
東京都中野区南台4丁目19-13

9.7万円 / 管理費12,000円
敷
無料礼
無料ワンルーム / 15.08㎡ / 2階
賃貸マンション
エスコートノヴェル代々木公園

小田急小田原線 / 代々木上原駅 徒歩13分
築23年 / 4階建
東京都渋谷区富ヶ谷2丁目14-19

10.7万円 / 管理費15,000円
敷
無料礼
無料1K / 22.16㎡ / 3階
賃貸マンション
CYNTHIA代田橋Ⅲ

京王線 / 代田橋駅 徒歩4分
築21年 / 7階建
東京都世田谷区大原2丁目24-26

9.9万円 / 管理費11,000円
敷
9.9万円礼
無料1K / 21.78㎡ / 2階
賃貸マンション
プランドル明大前

京王線 / 代田橋駅 徒歩5分
築16年 / 10階建
東京都世田谷区松原1丁目56-21

9.6万円 / 管理費7,000円
敷
9.6万円礼
9.6万円1K / 25.21㎡ / 6階
賃貸アパート
京王線 代打橋駅 3階建て 築10年
京王線 / 代田橋駅 徒歩9分
築11年 / 3階建
東京都杉並区和泉1丁目23-4
家賃カード決済可
9.4万円 / 管理費4,100円
敷
無料礼
18.8万円1K / 25.67㎡ / 3階
賃貸マンション
プライマル笹塚
京王線 / 笹塚駅 徒歩9分
築17年 / 12階建
東京都渋谷区幡ヶ谷3
10.6万円 / 管理費8,000円
敷
10.6万円礼
10.6万円ワンルーム / 20.02㎡ / 9階
賃貸マンション
ロクサーヌ北沢
)
京王線 / 笹塚駅 徒歩12分
築25年 / 3階建
東京都世田谷区北沢4丁目16-26
)
9.9万円 / 管理費5,000円
敷
9.9万円礼
9.9万円ワンルーム / 26.64㎡ / 3階
賃貸マンション
トーシンフェニックス笹塚駅前弐番館

京王線 / 笹塚駅 徒歩2分
築23年 / 13階建
東京都渋谷区笹塚1丁目

10.1万円 / 管理費10,000円
敷
無料礼
10.1万円1K / 21.9㎡ / 2階
賃貸マンション
渋谷区笹塚 4階建 2006年築
)
京王線 / 笹塚駅 徒歩12分
築20年 / 4階建
東京都渋谷区笹塚3丁目
)
9.9万円 / 管理費10,000円
敷
無料礼
無料ワンルーム / 21.35㎡ / 2階
賃貸マンション
ヴェルト杉並サウスヒル
)
京王線 / 代田橋駅 徒歩13分
築23年 / 9階建
東京都杉並区方南1丁目
)
8.3万円 / 管理費10,000円
敷
8.3万円礼
8.3万円1K / 22.25㎡ / 2階
賃貸マンション
トーシンフェニックス方南町弐番館

京王線 / 代田橋駅 徒歩17分
築20年 / 10階建
東京都杉並区方南2丁目

9.4万円 / 管理費なし
敷
9.4万円礼
9.4万円1K / 20.79㎡ / 4階
賃貸マンション
渋谷区笹塚 14階建 2005年築
)
京王線 / 笹塚駅 徒歩4分
築21年 / 14階建
東京都渋谷区笹塚2丁目
)
10.2万円 / 管理費8,000円
敷
無料礼
10.2万円1K / 25.92㎡ / 6階
賃貸マンション
世田谷区北沢 5階建 1998年築
)
東京メトロ千代田線 / 代々木上原駅 徒歩10分
築28年 / 5階建
東京都世田谷区北沢1丁目
)
8.6万円 / 管理費5,000円
敷
8.6万円礼
8.6万円ワンルーム / 19.27㎡ / 4階
賃貸マンション
アルティローザ笹塚

京王線 / 笹塚駅 徒歩13分
新築 / 地上3階地下1階建
東京都中野区南台4丁目19-13

9.7万円 / 管理費12,000円
敷
無料礼
無料ワンルーム / 15.08㎡ / 2階
賃貸マンション
エスコートノヴェル代々木公園

小田急小田原線 / 代々木上原駅 徒歩13分
築23年 / 4階建
東京都渋谷区富ヶ谷2丁目14-19

10.7万円 / 管理費15,000円
敷
無料礼
無料1K / 22.16㎡ / 3階
賃貸マンション
CYNTHIA代田橋Ⅲ

京王線 / 代田橋駅 徒歩4分
築21年 / 7階建
東京都世田谷区大原2丁目24-26

9.9万円 / 管理費11,000円
敷
9.9万円礼
無料1K / 21.78㎡ / 2階
賃貸マンション
プランドル明大前

京王線 / 代田橋駅 徒歩5分
築16年 / 10階建
東京都世田谷区松原1丁目56-21

9.6万円 / 管理費7,000円
敷
9.6万円礼
9.6万円1K / 25.21㎡ / 6階
賃貸アパート
京王線 代打橋駅 3階建て 築10年
京王線 / 代田橋駅 徒歩9分
築11年 / 3階建
東京都杉並区和泉1丁目23-4
家賃カード決済可
9.4万円 / 管理費4,100円
敷
無料礼
18.8万円1K / 25.67㎡ / 3階
賃貸マンション
プライマル笹塚
京王線 / 笹塚駅 徒歩9分
築17年 / 12階建
東京都渋谷区幡ヶ谷3
10.6万円 / 管理費8,000円
敷
10.6万円礼
10.6万円ワンルーム / 20.02㎡ / 9階
賃貸マンション
ロクサーヌ北沢
)
京王線 / 笹塚駅 徒歩12分
築25年 / 3階建
東京都世田谷区北沢4丁目16-26
)
9.9万円 / 管理費5,000円
敷
9.9万円礼
9.9万円ワンルーム / 26.64㎡ / 3階
賃貸マンション
トーシンフェニックス笹塚駅前弐番館

京王線 / 笹塚駅 徒歩2分
築23年 / 13階建
東京都渋谷区笹塚1丁目

10.1万円 / 管理費10,000円
敷
無料礼
10.1万円1K / 21.9㎡ / 2階
賃貸マンション
渋谷区笹塚 4階建 2006年築
)
京王線 / 笹塚駅 徒歩12分
築20年 / 4階建
東京都渋谷区笹塚3丁目
)
9.9万円 / 管理費10,000円
敷
無料礼
無料ワンルーム / 21.35㎡ / 2階
賃貸マンション
ヴェルト杉並サウスヒル
)
京王線 / 代田橋駅 徒歩13分
築23年 / 9階建
東京都杉並区方南1丁目
)
8.3万円 / 管理費10,000円
敷
8.3万円礼
8.3万円1K / 22.25㎡ / 2階
賃貸マンション
トーシンフェニックス方南町弐番館

京王線 / 代田橋駅 徒歩17分
築20年 / 10階建
東京都杉並区方南2丁目

9.4万円 / 管理費なし
敷
9.4万円礼
9.4万円1K / 20.79㎡ / 4階
賃貸マンション
渋谷区笹塚 14階建 2005年築
)
京王線 / 笹塚駅 徒歩4分
築21年 / 14階建
東京都渋谷区笹塚2丁目
)
10.2万円 / 管理費8,000円
敷
無料礼
10.2万円1K / 25.92㎡ / 6階
賃貸マンション
世田谷区北沢 5階建 1998年築
)
東京メトロ千代田線 / 代々木上原駅 徒歩10分
築28年 / 5階建
東京都世田谷区北沢1丁目
)
8.6万円 / 管理費5,000円
敷
8.6万円礼
8.6万円ワンルーム / 19.27㎡ / 4階
































)
)