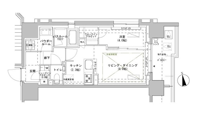
パークスフィア牛込神楽坂2LDK/4階/403(東京都新宿区 / 牛込柳町駅)の賃貸
1/30
1/30
34.4万円
初期費用を知りたい管理費15,000円
- 敷金
- 34.4万円
- 保証金
- なし
- 礼金
- 34.4万円
- 広さ
- 55.6㎡
- 階数
- 4階 / 地上14階地下1階建
- 間取り
- 2LDK
- 建物
- マンション (鉄筋コンクリート)
- 築年数
- 築5年
- 向き
- 西
- 交通
- 都営大江戸線 / 牛込柳町駅徒歩5分
- 都営大江戸線 / 牛込神楽坂駅徒歩7分
- 住所
- 東京都新宿区南山伏町3-3
新宿区立市谷小学校 260m
コンビニエンスストア 250m
スーパーマーケット 120m
総合病院 240m
牛込柳町駅(都営地下鉄 大江戸線) 420m
無料で10秒! カンタンお問い合わせ
パークスフィア牛込神楽坂
敷
34.4万円礼
34.4万円特徴
バス・トイレ別
2階以上
エアコン付き
ペット相談可
駐車場あり
室内洗濯機置場
オートロック
洗面所独立
- 入居条件
- 楽器相談、保証人要、保証人不要、ペット相談、ペット可、二人入居可最新の空室状況が知りたい
- バス・トイレ
- 専用バス、オートバス、追焚機能浴室、浴室乾燥機、シャワー、専用トイレ、温水洗浄便座、バストイレ別、シャワー付洗面化粧台、洗面所独立
- キッチン
- 食器洗乾燥機、ガスコンロ対応、3口以上コンロ、カウンターキッチン、システムキッチン
- セキュリティ
- オートロック、防犯カメラ、24時間セキュリティ
- 室内設備
- CATV、BS、CS、インターネット対応、光ファイバー、エアコン、冷房、床暖房、照明付、クロゼット、全居室収納、シューズボックス、室内洗濯置、フローリングお部屋の詳しい情報を知りたい
- 部屋の特徴
- バルコニー、二階以上写真を送ってほしい
- 共用部
- エレベーター、宅配ボックス
- その他の特徴
- 下水、公営水道、都市ガス、外壁タイル張り
無料で10秒! カンタンお問い合わせ
パークスフィア牛込神楽坂
敷
34.4万円礼
34.4万円同じ建物で掲載中の物件 (13件)
不動産会社からのコメント
牛込柳町駅徒歩4分 ピアノ・ペット相談可 食洗機 床暖房 オートロック
口座振替事務手数料:110円/月 敷金積み増し:ペット飼育1ヶ月。
その他
- 駐車/駐輪
- 空無 / なし駐車可能な車種や台数を知りたい
- 入居時期
- 2026年6月下旬最新の空室状況が知りたい
- 損保
- 住宅保険: 要
- 保証人代行
- 加入要 会社名: その他 費用: 初回保証委託料:月額賃料等の50%、2年目以降:10000円/年
- その他費用
初期費用を知りたい鍵交換費用:16,500円
室内清掃費用:85,624円
- 情報
情報登録日:2026/3/23
情報更新日:2026/3/22
次回更新予定日:2026/4/28
- 備考
- 現況: 居住中 更新料: 新賃料の1.0ヶ月分 契約期間: 2年
取扱い会社
- 取扱い会社
- スタートライングループ株式会社 花街神楽坂店条件が近い物件も紹介してほしい
- 免許番号
- 東京都知事(6)第76891号
- 取引態様
- 仲介
- 所在地
- 東京都新宿区神楽坂3-2-8 神楽坂三丁目ビル3F
- 電話番号
- 03-5579-8142
- 営業時間
- 10:00~19:00
- 定休日
- 受付:年中無休/店舗:水曜日(年末年始/GW/お盆)
- 所属団体名
- 公益社団法人全日本不動産協会
おすすめ物件 (1件)
賃貸マンション
アイビス市ヶ谷(IBIS市ヶ谷)
都営大江戸線 / 牛込神楽坂駅 徒歩7分
築7年 / 6階建
東京都新宿区払方町2-1
36.1万円 / 管理費10,000円
敷
36.1万円礼
無料1LDK / 64.43㎡ / 4階
賃貸マンション
アイビス市ヶ谷(IBIS市ヶ谷)
都営大江戸線 / 牛込神楽坂駅 徒歩7分
築7年 / 6階建
東京都新宿区払方町2-1
36.1万円 / 管理費10,000円
敷
36.1万円礼
無料1LDK / 64.43㎡ / 4階








