ヴェール・クレール大崎1K/1階(東京都品川区 / 戸越駅)の賃貸
1/22
1/22
14.5万円
初期費用を知りたい管理費10,000円
- 敷金
- 14.5万円
- 保証金
- なし
- 礼金
- 14.5万円
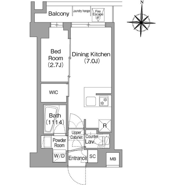
- 広さ
- 30.66㎡
- 階数
- 1階 / 9階建
- 間取り
- 1K
- 建物
- マンション (鉄筋コンクリート)
- 築年数
- 築3年
- 向き
- 南西
- 交通
- 都営浅草線 / 戸越駅徒歩8分
- 山手線 / 大崎駅徒歩11分
- 住所
- 東京都品川区大崎4丁目
コンビニエンスストア 231m
スーパーマーケット 129m
ドラッグストア 700m
ファミリーマート 西五反田六丁目店 419m
無料で10秒! カンタンお問い合わせ

ヴェール・クレール大崎
敷
14.5万円礼
14.5万円特徴
バス・トイレ別
2階以上
エアコン付き
ペット相談可
駐車場あり
室内洗濯機置場
オートロック
洗面所独立
- 入居条件
- 初期費用カード決済可、ペット相談、保証人不要最新の空室状況が知りたい
- バス・トイレ
- 専用バス、専用トイレ、バストイレ別、シャワー、給湯、追焚機能浴室、シャワー付洗面化粧台、温水洗浄便座、浴室乾燥機、洗面所独立、オートバス
- キッチン
- ガスコンロ対応、2口コンロ、システムキッチン
- セキュリティ
- オートロック、防犯カメラ
- 室内設備
- エアコン、室内洗濯置、CS、BS、フローリング、光ファイバー、ネット使用料不要、クロゼット、シューズボックス、照明付お部屋の詳しい情報を知りたい
- 部屋の特徴
- バルコニー写真を送ってほしい
- 共用部
- エレベーター、宅配ボックス、駐輪場、バイク置場
- その他の特徴
- 公営水道、都市ガス、下水、外壁タイル張り、デザイナーズ、分譲賃貸
無料で10秒! カンタンお問い合わせ

ヴェール・クレール大崎
敷
14.5万円礼
14.5万円同じ建物で掲載中の物件 (7件)
不動産会社からのコメント
通勤通学・プライベートの拠点に大変便利な好立地☆NURO光使用料不要☆戸越銀座商店街徒歩圏☆★エリア
沿線や近隣エリアの物件もまとめてご紹介いたします。ぜひお問合せ下さい☆ ■バイク置き場ほか共用設備は有料です。空き状況や詳細はお問合せ下さい。
その他
- 駐車/駐輪
- 近隣 費用: 35,000円 距離: 100m / あり駐車可能な車種や台数を知りたい
- 入居時期
- 2026年5月下旬最新の空室状況が知りたい
- 損保
- 住宅保険: 要
- 保証人代行
- 加入要 会社名: ジェイリース 費用: [保証会社]加入要[保証会社名]その他[保証会社利用料]ジェイリース・ウェルオンソリューションズ 初年度保証料賃料等合計50%、2年目以降1年毎1万円(個人
- その他費用
- 情報
情報登録日:2026/3/20
情報更新日:2026/3/27
次回更新予定日:2026/4/10
- 備考
- 現況: 居住中 更新料: 新賃料の1.0ヶ月分 契約期間: 2年 その他交通: 東急池上線 大崎広小路駅 徒歩9分 自社管理番号: 6801062
取扱い会社
- 取扱い会社
- 株式会社リブマックスリーシング 品川駅前店条件が近い物件も紹介してほしい
- 免許番号
- 国土交通大臣 (3) 第8116号
- 取引態様
- 仲介
- 所在地
- 東京都港区港南2丁目2-15 レゴリス品川駅前ビルディング 5F
- 電話番号
- 03-5495-7272
- 定休日
- 無し(年末年始、GW、夏季)
- 所属団体名
- 公益社団法人 全国宅地建物取引業保証協会
おすすめ物件 (8件)
賃貸マンション
品川区豊町1丁目 14階建 2023年築

都営浅草線 / 戸越駅 徒歩9分
築3年 / 14階建
東京都品川区豊町1丁目

13.5万円 / 管理費11,000円
敷
無料礼
13.5万円1K / 21.78㎡ / 5階
賃貸マンション
ヴェール・クレール大崎
都営浅草線 / 戸越駅 徒歩8分
築3年 / 9階建
東京都品川区大崎4丁目12-22
15.7万円 / 管理費10,000円
敷
15.7万円礼
無料1K / 30.66㎡ / 5階
賃貸マンション
オルサス戸越銀座(ORSUS戸越銀座)
都営浅草線 / 戸越駅 徒歩8分
築3年 / 6階建
東京都品川区荏原2丁目3-1
12.8万円 / 管理費10,000円
敷
12.8万円礼
12.8万円ワンルーム / 25.14㎡ / 1階
賃貸マンション
コンフォリア・リヴ品川戸越

都営浅草線 / 戸越駅 徒歩6分
築2年 / 8階建
東京都品川区戸越4丁目

13.9万円 / 管理費10,000円
敷
13.9万円礼
13.9万円1DK / 25.62㎡ / 2階
賃貸マンション
THE PREMIUM CUBE G 大崎
山手線 / 大崎駅 徒歩9分
築6年 / 5階建
東京都品川区西品川2丁目2-25
12.5万円 / 管理費15,000円
敷
12.5万円礼
12.5万円1K / 21.75㎡ / 4階
賃貸マンション
品川区豊町1丁目 14階建 2023年築

都営浅草線 / 戸越駅 徒歩9分
築3年 / 14階建
東京都品川区豊町1丁目

13.5万円 / 管理費11,000円
敷
無料礼
13.5万円1K / 21.78㎡ / 5階
賃貸マンション
ヴェール・クレール大崎
都営浅草線 / 戸越駅 徒歩8分
築3年 / 9階建
東京都品川区大崎4丁目12-22
15.7万円 / 管理費10,000円
敷
15.7万円礼
無料1K / 30.66㎡ / 5階
賃貸マンション
オルサス戸越銀座(ORSUS戸越銀座)
都営浅草線 / 戸越駅 徒歩8分
築3年 / 6階建
東京都品川区荏原2丁目3-1
12.8万円 / 管理費10,000円
敷
12.8万円礼
12.8万円ワンルーム / 25.14㎡ / 1階
賃貸マンション
コンフォリア・リヴ品川戸越

都営浅草線 / 戸越駅 徒歩6分
築2年 / 8階建
東京都品川区戸越4丁目

13.9万円 / 管理費10,000円
敷
13.9万円礼
13.9万円1DK / 25.62㎡ / 2階
賃貸マンション
THE PREMIUM CUBE G 大崎
山手線 / 大崎駅 徒歩9分
築6年 / 5階建
東京都品川区西品川2丁目2-25
12.5万円 / 管理費15,000円
敷
12.5万円礼
12.5万円1K / 21.75㎡ / 4階
同じ最寄り駅 × 同じ特徴 で探す
同じ市区町村 × 同じ特徴 で探す






















)






