グランシャリオ蓮沼1R/1階(東京都板橋区 / 本蓮沼駅)の賃貸
1/17
1/17
7.5万円
初期費用を知りたい管理費5,000円
- 敷金
- 7.5万円
- 保証金
- なし
- 礼金
- 7.5万円
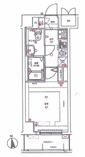
- 広さ
- 20.87㎡
- 階数
- 1階 / 7階建
- 間取り
- 1R
- 建物
- マンション (鉄骨)
- 築年数
- 築13年
- 向き
- 交通
- 都営三田線 / 本蓮沼駅徒歩5分
- 都営三田線 / 志村坂上駅徒歩8分
- 住所
- 東京都板橋区蓮沼町
板橋区役所 2517m
無料で10秒! カンタンお問い合わせ

グランシャリオ蓮沼
敷
7.5万円礼
7.5万円特徴
バス・トイレ別
2階以上
エアコン付き
ペット相談可
駐車場あり
室内洗濯機置場
オートロック
洗面所独立
- 入居条件
- 保証人不要、初期費用カード決済可最新の空室状況が知りたい
- バス・トイレ
- 専用バス、専用トイレ、バストイレ別、シャワー、温水洗浄便座
- キッチン
- ガスコンロ対応
- セキュリティ
- オートロック
- 室内設備
- エアコン、室内洗濯置、CATV、フローリング、光ファイバー、クロゼットお部屋の詳しい情報を知りたい
- 部屋の特徴
- バルコニー、角住戸写真を送ってほしい
- 共用部
- エレベーター、駐輪場
- その他の特徴
- 定期借家、公営水道、都市ガス、下水
無料で10秒! カンタンお問い合わせ

グランシャリオ蓮沼
敷
7.5万円礼
7.5万円不動産会社からのコメント
【”最短5秒”でお返事します!!】 【プロ賃貸師×診断×提案】
賃貸物件は“1点もの”!それだけに物件検索と等しく【業者選び】が大切です!物件の強みも弱点も正直に、シンクロは無理なご提案をしません。焦らず納得できる選択をご一緒に!「空室確認はおヘヤ探しの第一歩!」
その他
- 駐車/駐輪
- 無 / あり駐車可能な車種や台数を知りたい
- 入居時期
- 損保
- 住宅保険: 要
- 保証人代行
- 加入要 費用: 契約時:月額総賃料の50%~要。※保証会社により費用は異なります。
- その他費用
初期費用を知りたい鍵交換費用:19,800円
- 情報
情報登録日:2026/2/19
情報更新日:2026/2/21
次回更新予定日:2026/2/27
提供元:LIFULL HOME'S
- 備考
- 現況: 居住中 更新料: 新賃料の1.0ヶ月分 契約期間: 2年 ※定期借家 管理人: 巡回 総戸数: 12戸 LIFULL HOME'S物件番号: 1569880000203
取扱い会社
- 取扱い会社
- シンクロ株式会社条件が近い物件も紹介してほしい
- 免許番号
- 東京都知事(01)第109538号
- 取引態様
- 仲介
- 所在地
- 東京都豊島区南池袋2丁目10-5 IMB南池袋ビル201
- 電話番号
- 03-5985-4345
- 営業時間
- 10:00~19:00
- 定休日
- GW 夏季 年末年始
- 所属団体名
- (公社)首都圏不動産公正取引協議会,(公社)全日本不動産協会東京都本部,(公財)東日本不動産流通機構
おすすめ物件 (15件)
賃貸マンション
都営三田線「本蓮沼」駅 築8年 4階建て
都営三田線 / 本蓮沼駅 徒歩5分
築9年 / 4階建
東京都板橋区泉町12-10
家賃カード決済可
8.5万円 / 管理費4,600円
敷
無料礼
17万円1K / 26.45㎡ / 4階
賃貸マンション
東京都三田線 板橋本町駅 12階建て 築9年 3階部分
都営三田線 / 本蓮沼駅 徒歩9分
築10年 / 12階建
東京都板橋区宮本町12-2
9万円 / 管理費10,000円
敷
9万円礼
9万円1K / 25.95㎡ / 3階
賃貸マンション
三田線 志村坂上駅 5階建て 築11年 1階部分
都営三田線 / 志村坂上駅 徒歩6分
築12年 / 5階建
東京都板橋区志村1丁目30-24
7.65万円 / 管理費10,000円
敷
無料礼
7.65万円1K / 25.52㎡ / 1階
賃貸マンション
都営三田線 志村坂上駅 5階建て 築14年
都営三田線 / 志村坂上駅 徒歩5分
築15年 / 5階建
東京都板橋区小豆沢2丁目21-23
家賃カード決済可
7.65万円 / 管理費5,000円
敷
7.65万円礼
7.65万円1K / 25.7㎡ / 4階
賃貸マンション
都営三田線 本蓮沼駅 5階建て 築9年
都営三田線 / 本蓮沼駅 徒歩9分
築10年 / 5階建
東京都北区赤羽西6丁目28-1
家賃カード決済可
7.4万円 / 管理費20,000円
敷
11.1万円礼
11.1万円1K / 26.19㎡ / 1階
賃貸マンション
エルフォルテ赤羽西

都営三田線 / 本蓮沼駅 徒歩9分
築10年 / 5階建
東京都北区赤羽西6丁目

8.2万円 / 管理費14,000円
敷
12.3万円礼
12.3万円1K / 25.52㎡ / 2階
賃貸マンション
GENOVIA板橋本町green wall

都営三田線 / 本蓮沼駅 徒歩15分
築15年 / 8階建
東京都板橋区富士見町11-14

8.7万円 / 管理費10,000円
敷
無料礼
8.7万円1K / 25.92㎡ / 2階
賃貸マンション
ベルシード志村坂上

都営三田線 / 志村坂上駅 徒歩10分
築9年 / 6階建
東京都板橋区小豆沢4丁目1-26

8.6万円 / 管理費15,000円
敷
無料礼
8.6万円1K / 25.99㎡ / 5階
賃貸マンション
パルメゾン見次公園

都営三田線 / 志村坂上駅 徒歩8分
築14年 / 7階建
東京都板橋区前野町3丁目47-11

8.5万円 / 管理費5,000円
敷
8.5万円礼
12.75万円1K / 25.31㎡ / 4階
賃貸マンション
ロイジェント志村坂上

都営三田線 / 志村坂上駅 徒歩13分
築4年 / 7階建
東京都板橋区東坂下2丁目3-14

8.5万円 / 管理費15,000円
敷
8.5万円礼
8.5万円1K / 25.84㎡ / 5階
賃貸アパート
ソフィア西が丘
)
都営三田線 / 本蓮沼駅 徒歩18分
築5年 / 2階建
東京都北区西が丘2丁目23-13
)
7.2万円 / 管理費3,000円
敷
7.2万円礼
7.2万円1K / 21.06㎡ / 1階
賃貸マンション
ARUME本蓮沼 ーアルメモトハスヌマー
)
都営三田線 / 本蓮沼駅 徒歩8分
築12年 / 3階建
東京都板橋区大原町
)
9.3万円 / 管理費5,000円
敷
9.3万円礼
9.3万円1K / 30.3㎡ / 3階
賃貸マンション
パティーナ志村坂上

都営三田線 / 志村坂上駅 徒歩4分
築12年 / 5階建
東京都板橋区志村1丁目

8.95万円 / 管理費15,000円
敷
8.95万円礼
8.95万円1K / 25.65㎡ / 3階
賃貸マンション
板橋区本町 9階建 2008年築
)
都営三田線 / 本蓮沼駅 徒歩13分
築18年 / 9階建
東京都板橋区本町
)
7.2万円 / 管理費8,000円
敷
7.2万円礼
7.2万円1K / 20.52㎡ / 3階
賃貸マンション
都営三田線「本蓮沼」駅 築8年 4階建て
都営三田線 / 本蓮沼駅 徒歩5分
築9年 / 4階建
東京都板橋区泉町12-10
家賃カード決済可
8.5万円 / 管理費4,600円
敷
無料礼
17万円1K / 26.45㎡ / 4階
賃貸マンション
東京都三田線 板橋本町駅 12階建て 築9年 3階部分
都営三田線 / 本蓮沼駅 徒歩9分
築10年 / 12階建
東京都板橋区宮本町12-2
9万円 / 管理費10,000円
敷
9万円礼
9万円1K / 25.95㎡ / 3階
賃貸マンション
三田線 志村坂上駅 5階建て 築11年 1階部分
都営三田線 / 志村坂上駅 徒歩6分
築12年 / 5階建
東京都板橋区志村1丁目30-24
7.65万円 / 管理費10,000円
敷
無料礼
7.65万円1K / 25.52㎡ / 1階
賃貸マンション
都営三田線 志村坂上駅 5階建て 築14年
都営三田線 / 志村坂上駅 徒歩5分
築15年 / 5階建
東京都板橋区小豆沢2丁目21-23
家賃カード決済可
7.65万円 / 管理費5,000円
敷
7.65万円礼
7.65万円1K / 25.7㎡ / 4階
賃貸マンション
都営三田線 本蓮沼駅 5階建て 築9年
都営三田線 / 本蓮沼駅 徒歩9分
築10年 / 5階建
東京都北区赤羽西6丁目28-1
家賃カード決済可
7.4万円 / 管理費20,000円
敷
11.1万円礼
11.1万円1K / 26.19㎡ / 1階
賃貸マンション
エルフォルテ赤羽西

都営三田線 / 本蓮沼駅 徒歩9分
築10年 / 5階建
東京都北区赤羽西6丁目

8.2万円 / 管理費14,000円
敷
12.3万円礼
12.3万円1K / 25.52㎡ / 2階
賃貸マンション
GENOVIA板橋本町green wall

都営三田線 / 本蓮沼駅 徒歩15分
築15年 / 8階建
東京都板橋区富士見町11-14

8.7万円 / 管理費10,000円
敷
無料礼
8.7万円1K / 25.92㎡ / 2階
賃貸マンション
ベルシード志村坂上

都営三田線 / 志村坂上駅 徒歩10分
築9年 / 6階建
東京都板橋区小豆沢4丁目1-26

8.6万円 / 管理費15,000円
敷
無料礼
8.6万円1K / 25.99㎡ / 5階
賃貸マンション
パルメゾン見次公園

都営三田線 / 志村坂上駅 徒歩8分
築14年 / 7階建
東京都板橋区前野町3丁目47-11

8.5万円 / 管理費5,000円
敷
8.5万円礼
12.75万円1K / 25.31㎡ / 4階
賃貸マンション
ロイジェント志村坂上

都営三田線 / 志村坂上駅 徒歩13分
築4年 / 7階建
東京都板橋区東坂下2丁目3-14

8.5万円 / 管理費15,000円
敷
8.5万円礼
8.5万円1K / 25.84㎡ / 5階
賃貸アパート
ソフィア西が丘
)
都営三田線 / 本蓮沼駅 徒歩18分
築5年 / 2階建
東京都北区西が丘2丁目23-13
)
7.2万円 / 管理費3,000円
敷
7.2万円礼
7.2万円1K / 21.06㎡ / 1階
賃貸マンション
ARUME本蓮沼 ーアルメモトハスヌマー
)
都営三田線 / 本蓮沼駅 徒歩8分
築12年 / 3階建
東京都板橋区大原町
)
9.3万円 / 管理費5,000円
敷
9.3万円礼
9.3万円1K / 30.3㎡ / 3階
賃貸マンション
パティーナ志村坂上

都営三田線 / 志村坂上駅 徒歩4分
築12年 / 5階建
東京都板橋区志村1丁目

8.95万円 / 管理費15,000円
敷
8.95万円礼
8.95万円1K / 25.65㎡ / 3階
賃貸マンション
板橋区本町 9階建 2008年築
)
都営三田線 / 本蓮沼駅 徒歩13分
築18年 / 9階建
東京都板橋区本町
)
7.2万円 / 管理費8,000円
敷
7.2万円礼
7.2万円1K / 20.52㎡ / 3階
同じ最寄り駅 × 同じ特徴 で探す
同じ市区町村 × 同じ特徴 で探す


















