ハーモニーテラス東大泉Ⅲ1R/1階(東京都練馬区 / 大泉学園駅)の賃貸
1/30
1/30
5.75万円
初期費用を知りたい管理費4,000円
- 敷金
- 無料
- 保証金
- なし
- 礼金
- 5.75万円
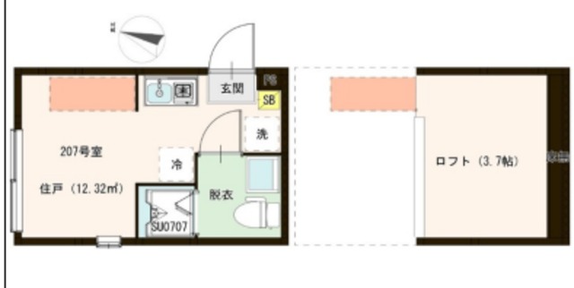
- 広さ
- 11.58㎡
- 階数
- 1階 / 2階建
- 間取り
- 1R
- 建物
- アパート (木造)
- 築年数
- 新築
- 向き
- 交通
- 西武池袋線 / 大泉学園駅徒歩7分
- 西武池袋線 / 石神井公園駅徒歩23分
- 住所
- 東京都練馬区東大泉3丁目
コンビニエンスストア 573m
スーパーマーケット 520m
ドラッグストア 641m
リンガーハット グランエミオ大泉学園店 580m
無料で10秒! カンタンお問い合わせ

ハーモニーテラス東大泉Ⅲ
敷
無料礼
5.75万円特徴
バス・トイレ別
2階以上
エアコン付き
ペット相談可
駐車場あり
室内洗濯機置場
オートロック
洗面所独立
- 入居条件
- 初期費用カード決済可、学生歓迎、ペット不可、保証人不要最新の空室状況が知りたい
- バス・トイレ
- 専用バス、専用トイレ、バストイレ別、シャワー、給湯、温水洗浄便座
- キッチン
- ガスコンロ対応、1口コンロ、システムキッチン
- セキュリティ
- 防犯カメラ
- 室内設備
- エアコン、室内洗濯置、フローリング、インターネット対応、ネット使用料不要、クロゼット、シューズボックス、照明付お部屋の詳しい情報を知りたい
- 部屋の特徴
- ロフト写真を送ってほしい
- 共用部
- 宅配ボックス
- その他の特徴
- 公営水道、下水、デザイナーズ
無料で10秒! カンタンお問い合わせ

ハーモニーテラス東大泉Ⅲ
敷
無料礼
5.75万円不動産会社からのコメント
室内設備はシステムキッチン・ネット使用料不要・照明付きなど大変充実。セキュリティ面は、防犯カメラ・電
町内会費300円(月額) セキュリティ面は、防犯カメラ・電子ロックなど充実しているので、防犯対策もばっちりです。室内設備はシステムキッチン・照明付き・ネット使用料不要など充実した設備を備え付けています。全居室フローリングなので跡を気にせずに物を置くことができます。閑静な住宅地にある物件です。一口コンロが付いた物件です。ごみ置き場も用意されており、通勤前などにごみ捨て可能です。現在建設中です(#^^#)
その他
- 駐車/駐輪
- 要確認 / なし駐車可能な車種や台数を知りたい
- 入居時期
- 2026年1月中旬最新の空室状況が知りたい
- 損保
- 住宅保険: 要
- 保証人代行
- 加入要 費用: SKC保証 連帯保証人有:初回保証料30000円(引落手数料月660円) 連帯保証人無:初回保証料総賃料50000円(引落手数料月660円) 1年毎に更新料12000円
- その他費用
初期費用を知りたいIot設定登録費:16,500円
24時間サポート:20,900円
退去時クリーニング費用:38,500円
- 情報
情報登録日:2025/12/13
情報更新日:2025/12/12
次回更新予定日:2025/12/19
- 備考
- 現況: 未完成 状態: 未入居 更新料: 新賃料の1.0ヶ月分 契約期間: 2年 自社管理番号: 381220
取扱い会社
- 取扱い会社
- Room Collection株式会社 部屋コレ新宿店条件が近い物件も紹介してほしい
- 免許番号
- 東京都知事 (2) 第102065号
- 取引態様
- 仲介
- 所在地
- 東京都新宿区新宿3丁目35-6 新宿アウンビル 9F
- 電話番号
- 03-6709-8205
- 営業時間
- 10:00~19:00
- 定休日
- 無(年末年始12月27日~1月5日)
- 所属団体名
- 公益社団法人全国宅地建物取引業保証協会
おすすめ物件 (14件)
賃貸アパート
キャトル大泉学園3番館

西武池袋線 / 大泉学園駅 徒歩20分
築8年 / 3階建
東京都練馬区西大泉2丁目1315

5.3万円 / 管理費2,000円
敷
5.3万円礼
無料ワンルーム / 13.14㎡ / 3階
賃貸アパート
西武池袋線 練馬高野台駅 3階建 築6年
西武池袋線 / 石神井公園駅 徒歩22分
築5年 / 3階建
東京都練馬区富士見台3
7.3万円 / 管理費3,000円
敷
無料礼
無料1K / 17.22㎡ / 2階
賃貸マンション
ソリッド大泉学園B棟

西武池袋線 / 大泉学園駅 徒歩10分
築17年 / 4階建
東京都練馬区南大泉5丁目4-12

7.1万円 / 管理費3,000円
敷
無料礼
無料ワンルーム / 21.2㎡ / 4階
賃貸アパート
GrandStudio大泉学園

西武池袋線 / 大泉学園駅 徒歩10分
築8年 / 2階建
東京都練馬区南大泉4丁目10-2

5万円 / 管理費7,000円
敷
無料礼
無料ワンルーム / 9.91㎡ / 2階
賃貸アパート
練馬区下石神井4丁目 2階建 2025年築

西武池袋線 / 石神井公園駅 徒歩26分
新築 / 2階建
東京都練馬区下石神井4丁目8-2

5.9万円 / 管理費8,000円
敷
無料礼
無料ワンルーム / 12.32㎡ / 2階
賃貸アパート
JTテラスハウス南大泉

西武池袋線 / 大泉学園駅 徒歩20分
築10年 / 2階建
東京都練馬区南大泉1丁目26-21

6.2万円 / 管理費4,000円
敷
無料礼
無料1K / 20.38㎡ / 1階
賃貸アパート
練馬区東大泉 2階建 2019年築
)
西武池袋線 / 大泉学園駅 徒歩11分
築6年 / 2階建
東京都練馬区東大泉3丁目37-28
)
7万円 / 管理費なし
敷
無料礼
無料1K / 19.98㎡ / 1階
賃貸アパート
メープル大泉学園D
)
西武池袋線 / 大泉学園駅 徒歩15分
築33年 / 2階建
東京都練馬区南大泉4丁目39-30
)
5.8万円 / 管理費2,000円
敷
5.8万円礼
5.8万円1K / 18㎡ / 2階
賃貸アパート
キャトル大泉学園3番館

西武池袋線 / 大泉学園駅 徒歩20分
築8年 / 3階建
東京都練馬区西大泉2丁目1315

5.3万円 / 管理費2,000円
敷
5.3万円礼
無料ワンルーム / 13.14㎡ / 3階
賃貸アパート
西武池袋線 練馬高野台駅 3階建 築6年
西武池袋線 / 石神井公園駅 徒歩22分
築5年 / 3階建
東京都練馬区富士見台3
7.3万円 / 管理費3,000円
敷
無料礼
無料1K / 17.22㎡ / 2階
賃貸マンション
ソリッド大泉学園B棟

西武池袋線 / 大泉学園駅 徒歩10分
築17年 / 4階建
東京都練馬区南大泉5丁目4-12

7.1万円 / 管理費3,000円
敷
無料礼
無料ワンルーム / 21.2㎡ / 4階
賃貸アパート
GrandStudio大泉学園

西武池袋線 / 大泉学園駅 徒歩10分
築8年 / 2階建
東京都練馬区南大泉4丁目10-2

5万円 / 管理費7,000円
敷
無料礼
無料ワンルーム / 9.91㎡ / 2階
賃貸アパート
練馬区下石神井4丁目 2階建 2025年築

西武池袋線 / 石神井公園駅 徒歩26分
新築 / 2階建
東京都練馬区下石神井4丁目8-2

5.9万円 / 管理費8,000円
敷
無料礼
無料ワンルーム / 12.32㎡ / 2階
賃貸アパート
JTテラスハウス南大泉

西武池袋線 / 大泉学園駅 徒歩20分
築10年 / 2階建
東京都練馬区南大泉1丁目26-21

6.2万円 / 管理費4,000円
敷
無料礼
無料1K / 20.38㎡ / 1階
賃貸アパート
練馬区東大泉 2階建 2019年築
)
西武池袋線 / 大泉学園駅 徒歩11分
築6年 / 2階建
東京都練馬区東大泉3丁目37-28
)
7万円 / 管理費なし
敷
無料礼
無料1K / 19.98㎡ / 1階
賃貸アパート
メープル大泉学園D
)
西武池袋線 / 大泉学園駅 徒歩15分
築33年 / 2階建
東京都練馬区南大泉4丁目39-30
)
5.8万円 / 管理費2,000円
敷
5.8万円礼
5.8万円1K / 18㎡ / 2階





































