パークスフィア牛込神楽坂1R/11階/1108(東京都新宿区 / 牛込柳町駅)の賃貸
1/30
1/30
22.7万円
初期費用を知りたい管理費15,000円
- 敷金
- 22.7万円
- 保証金
- なし
- 礼金
- 22.7万円
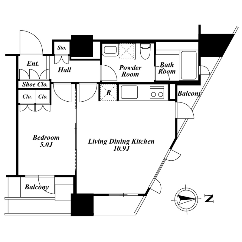
- 広さ
- 40.01㎡
- 階数
- 11階 / 地上14階地下1階建
- 間取り
- 1R
- 建物
- マンション (鉄筋コンクリート)
- 築年数
- 築5年
- 向き
- 東
- 交通
- 都営大江戸線 / 牛込柳町駅徒歩4分
- 都営大江戸線 / 牛込神楽坂駅徒歩7分
- 住所
- 東京都新宿区南山伏町3-3
新宿区立市谷小学校 230m
コンビニエンスストア 220m
スーパーマーケット 90m
総合病院 220m
牛込柳町駅(都営地下鉄 大江戸線) 390m
無料で10秒! カンタンお問い合わせ
パークスフィア牛込神楽坂
敷
22.7万円礼
22.7万円特徴
バス・トイレ別
2階以上
エアコン付き
ペット相談可
駐車場あり
室内洗濯機置場
オートロック
洗面所独立
- 入居条件
- 楽器相談、保証人不要、ペット相談、ペット可、二人入居可、即入居可最新の空室状況が知りたい
- バス・トイレ
- 給湯、専用バス、オートバス、追焚機能浴室、浴室乾燥機、シャワー、専用トイレ、温水洗浄便座、バストイレ別、シャワー付洗面化粧台、洗面所独立
- キッチン
- 食器洗乾燥機、ガスコンロ対応、2口コンロ、カウンターキッチン、システムキッチン
- セキュリティ
- オートロック、防犯カメラ、24時間セキュリティ
- 室内設備
- CATV、BS、CS、インターネット対応、光ファイバー、エアコン、冷房、床暖房、照明付、クロゼット、全居室収納、シューズボックス、室内洗濯置、フローリングお部屋の詳しい情報を知りたい
- 部屋の特徴
- バルコニー、二階以上写真を送ってほしい
- 共用部
- エレベーター、宅配ボックス、駐輪場、敷地内駐車場
- その他の特徴
- 下水、公営水道、都市ガス、外壁タイル張り、駐車場あり
無料で10秒! カンタンお問い合わせ
パークスフィア牛込神楽坂
敷
22.7万円礼
22.7万円同じ建物で掲載中の物件 (16件)
不動産会社からのコメント
ペット飼育可 楽器(アップライトピアノ)可 牛込柳町駅徒歩5分床暖房 エアコン 食洗機 給湯追い焚き
口座振替事務手数料:110円 短期解約違約金あり 敷金積み増し:ペット飼育1ヶ月。
その他
- 駐車/駐輪
- 空有 費用: 49,500円 税: 税込み 距離: 0m / あり駐車可能な車種や台数を知りたい
- 入居時期
- 損保
- 住宅保険: 要
- 保証人代行
- 加入要 会社名: その他 費用: 初回保証委託料(最低20000円):月額賃料等の50%、2年目以降:10000円/年
- その他費用
初期費用を知りたい鍵交換費用:16,500円
- 情報
情報登録日:2025/8/17
情報更新日:2026/3/11
次回更新予定日:2026/3/23
- 備考
- 現況: 空家 更新料: 新賃料の1.0ヶ月分 契約期間: 2年
取扱い会社
- 取扱い会社
- スタートライングループ株式会社 花街神楽坂店条件が近い物件も紹介してほしい
- 免許番号
- 東京都知事(6)第76891号
- 取引態様
- 仲介
- 所在地
- 東京都新宿区神楽坂3-2-8 神楽坂三丁目ビル3F
- 電話番号
- 03-5579-8142
- 営業時間
- 10:00~19:00
- 定休日
- 受付:年中無休/店舗:水曜日(年末年始/GW/お盆)
- 所属団体名
- 公益社団法人全日本不動産協会
おすすめ物件 (7件)
賃貸マンション
プライムアーバン市谷仲之町

都営大江戸線 / 牛込柳町駅 徒歩10分
築19年 / 5階建
東京都新宿区市谷仲之町2-40

22.9万円 / 管理費10,000円
敷
22.9万円礼
22.9万円1LDK / 47.7㎡ / 3階
賃貸マンション
プライムアーバン新宿夏目坂タワーレジデンス

都営大江戸線 / 牛込柳町駅 徒歩4分
築18年 / 地上30階地下1階建
東京都新宿区原町3丁目

21万円 / 管理費10,000円
敷
42万円礼
無料1LDK / 40.33㎡ / 10階
賃貸マンション
パークスフィア牛込神楽坂(PARK SPHERE)
都営大江戸線 / 牛込柳町駅 徒歩4分
築5年 / 地上14階地下1階建
東京都新宿区南山伏町
家賃カード決済可
22.4万円 / 管理費15,000円
敷
22.4万円礼
22.4万円ワンルーム / 40.01㎡ / 8階
賃貸マンション
都営大江戸線 牛込柳町駅 地下1地上13階建 築5年
都営大江戸線 / 牛込柳町駅 徒歩4分
築5年 / 地上13階地下1階建
東京都新宿区南山伏町
23.5万円 / 管理費15,000円
敷
23.5万円礼
23.5万円ワンルーム / 40.01㎡ / 8階
賃貸マンション
アイビス市ヶ谷

都営大江戸線 / 牛込神楽坂駅 徒歩7分
築7年 / 6階建
東京都新宿区払方町

家賃カード決済可
24万円 / 管理費15,000円
敷
24万円礼
無料1LDK / 43.78㎡ / 5階
賃貸マンション
エルファーロ早稲田

都営大江戸線 / 牛込柳町駅 徒歩9分
新築 / 4階建
東京都新宿区喜久井町22-32

23.1万円 / 管理費10,000円
敷
無料礼
無料2LDK / 40.6㎡ / 3階
賃貸マンション
プライムアーバン市谷仲之町

都営大江戸線 / 牛込柳町駅 徒歩10分
築19年 / 5階建
東京都新宿区市谷仲之町2-40

22.9万円 / 管理費10,000円
敷
22.9万円礼
22.9万円1LDK / 47.7㎡ / 3階
賃貸マンション
プライムアーバン新宿夏目坂タワーレジデンス

都営大江戸線 / 牛込柳町駅 徒歩4分
築18年 / 地上30階地下1階建
東京都新宿区原町3丁目

21万円 / 管理費10,000円
敷
42万円礼
無料1LDK / 40.33㎡ / 10階
賃貸マンション
パークスフィア牛込神楽坂(PARK SPHERE)
都営大江戸線 / 牛込柳町駅 徒歩4分
築5年 / 地上14階地下1階建
東京都新宿区南山伏町
家賃カード決済可
22.4万円 / 管理費15,000円
敷
22.4万円礼
22.4万円ワンルーム / 40.01㎡ / 8階
賃貸マンション
都営大江戸線 牛込柳町駅 地下1地上13階建 築5年
都営大江戸線 / 牛込柳町駅 徒歩4分
築5年 / 地上13階地下1階建
東京都新宿区南山伏町
23.5万円 / 管理費15,000円
敷
23.5万円礼
23.5万円ワンルーム / 40.01㎡ / 8階
賃貸マンション
アイビス市ヶ谷

都営大江戸線 / 牛込神楽坂駅 徒歩7分
築7年 / 6階建
東京都新宿区払方町

家賃カード決済可
24万円 / 管理費15,000円
敷
24万円礼
無料1LDK / 43.78㎡ / 5階
賃貸マンション
エルファーロ早稲田

都営大江戸線 / 牛込柳町駅 徒歩9分
新築 / 4階建
東京都新宿区喜久井町22-32

23.1万円 / 管理費10,000円
敷
無料礼
無料2LDK / 40.6㎡ / 3階
















