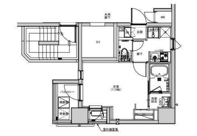
足立区梅田 10階建 2026年築1LDK/6階/601(東京都足立区 / 梅島駅)の賃貸
1/11
1/11
9.1万円
初期費用を知りたい管理費12,000円
- 敷金
- 9.1万円
- 保証金
- なし
- 礼金
- 9.1万円
- 広さ
- 29.27㎡
- 階数
- 6階 / 10階建
- 間取り
- 1LDK
- 建物
- マンション (鉄骨)
- 築年数
- 築-1年
- 向き
- 交通
- 東武伊勢崎線 / 梅島駅徒歩11分
- 東武伊勢崎線 / 五反野駅徒歩13分
- 東武伊勢崎線 / 小菅駅徒歩20分
- 住所
- 東京都足立区梅田2丁目1788-3
H&Dイチカワ 424m
(株)ココスナカムラ/本部 710m
(株)東武ストア/梅島店 843m
サミット(株)/五反野店 1078m
マルエツプチ五反野駅店 1103m
アコレ梅島駅前店 938m
(株)東武ストア/小菅店 1536m
小菅駅 1544m
無料で10秒! カンタンお問い合わせ
)
足立区梅田 10階建 2026年築
敷
9.1万円礼
9.1万円特徴
バス・トイレ別
2階以上
エアコン付き
ペット相談可
駐車場あり
室内洗濯機置場
オートロック
洗面所独立
- バス・トイレ
- バストイレ別、浴室乾燥機、洗面所独立
- セキュリティ
- オートロック、24時間緊急通報システム、防犯カメラ、ディンプルキー、オートロック、24時間緊急通報システム
- 室内設備
- エアコン、室内洗濯置、24時間換気システムお部屋の詳しい情報を知りたい
- 部屋の特徴
- 陽当り良好、二階以上写真を送ってほしい
- 共用部
- 宅配ボックス、駐輪場
無料で10秒! カンタンお問い合わせ
)
足立区梅田 10階建 2026年築
敷
9.1万円礼
9.1万円同じ建物で掲載中の物件 (18件)
その他
- 駐車/駐輪
- 無し / あり駐車可能な車種や台数を知りたい
- 入居時期
- 2026年1月上旬最新の空室状況が知りたい
- 損保
- 住宅保険: 要 22000円
- 保証人代行
- 保証人: 要
- その他費用
- 情報
情報登録日:2025/10/5
情報更新日:2025/11/28
次回更新予定日:2025/12/22
- 備考
- 更新料: 91000円 退去時費用備考: 退去時クリーニング代借主負担 その他: 保証会社利用必須 要確認 業者管理CD: 111085449
取扱い会社
- 取扱い会社
- アパマンショップ綾瀬店 株式会社 アップル条件が近い物件も紹介してほしい
- 免許番号
- 国土交通大臣(5)6971
- 取引態様
- 一般媒介
- 所在地
- 東京都葛飾区小菅4丁目
- 電話番号
- 03-6865-7373
- 所属団体名
- (公社)東京都宅地建物取引業協会,(公社) 首都圏不動産公正取引協議会加盟
おすすめ物件 (19件)
賃貸マンション
ORSUS UMEJIMA

東武伊勢崎線 / 梅島駅 徒歩6分
築3年 / 6階建
東京都足立区梅島2丁目

10.5万円 / 管理費10,000円
敷
10.5万円礼
無料1K / 25.33㎡ / 6階
賃貸アパート
Gracieux Maison

東武伊勢崎線 / 梅島駅 徒歩8分
築6年 / 2階建
東京都足立区梅田6丁目21-3

7.7万円 / 管理費4,000円
敷
無料礼
7.7万円1DK / 25.09㎡ / 2階
賃貸マンション
ベルシード五反野

東武伊勢崎線 / 五反野駅 徒歩7分
築1年 / 7階建
東京都足立区足立3丁目15-4

8.2万円 / 管理費15,000円
敷
無料礼
8.2万円1K / 25.76㎡ / 6階
賃貸マンション
プレール・ドゥーク梅島

東武伊勢崎線 / 梅島駅 徒歩5分
築7年 / 11階建
東京都足立区梅田6丁目

10.4万円 / 管理費11,000円
敷
無料礼
10.4万円1K / 30.58㎡ / 2階
賃貸マンション
足立区綾瀬1丁目 11階建 2024年築

東武伊勢崎線 / 小菅駅 徒歩14分
築1年 / 11階建
東京都足立区綾瀬1丁目

10.8万円 / 管理費15,000円
敷
無料礼
無料1K / 25.68㎡ / 9階
賃貸マンション
ハニーマンション

東武伊勢崎線 / 梅島駅 徒歩5分
築16年 / 4階建
東京都足立区梅島1丁目

7.7万円 / 管理費5,000円
敷
3.85万円礼
11.55万円1K / 23.73㎡ / 4階
賃貸マンション
プレニーズ五反野MAXIV

東武伊勢崎線 / 五反野駅 徒歩9分
新築 / 11階建
東京都足立区足立4丁目1-10

9.35万円 / 管理費10,000円
敷
無料礼
9.35万円1K / 25.95㎡ / 11階
賃貸マンション
S-RESIDENCE綾瀬rivie

東武伊勢崎線 / 小菅駅 徒歩19分
築2年 / 12階建
東京都足立区綾瀬3丁目16-2

11万円 / 管理費10,000円
敷
無料礼
無料1K / 25.6㎡ / 4階
賃貸マンション
足立区綾瀬 8階建 2012年築
)
東武伊勢崎線 / 小菅駅 徒歩20分
築13年 / 8階建
東京都足立区綾瀬3丁目19-2
)
9.5万円 / 管理費6,000円
敷
9.5万円礼
無料1K / 25.28㎡ / 5階
賃貸マンション
葛飾区堀切 14階建 2021年築
)
東武伊勢崎線 / 小菅駅 徒歩24分
築4年 / 14階建
東京都葛飾区堀切8丁目1-4
)
9.2万円 / 管理費10,000円
敷
無料礼
無料1K / 20.73㎡ / 13階
賃貸マンション
葛飾区堀切 9階建 2021年築
)
東武伊勢崎線 / 小菅駅 徒歩22分
築4年 / 9階建
東京都葛飾区堀切7丁目32-4
)
10.5万円 / 管理費12,000円
敷
無料礼
10.5万円1K / 20.47㎡ / 4階
賃貸マンション
ジェノヴィア五反野スカイガーデン
)
東武伊勢崎線 / 五反野駅 徒歩10分
築4年 / 10階建
東京都足立区梅田2丁目
)
9.6万円 / 管理費10,000円
敷
無料礼
無料1K / 26.1㎡ / 9階
賃貸マンション
FREESIA梅島
)
東武伊勢崎線 / 梅島駅 徒歩11分
築-1年 / 10階建
東京都足立区梅田2丁目
)
9.5万円 / 管理費12,000円
敷
9.5万円礼
9.5万円1LDK / 29.28㎡ / 10階
賃貸マンション
ORSUS UMEJIMA

東武伊勢崎線 / 梅島駅 徒歩6分
築3年 / 6階建
東京都足立区梅島2丁目

10.5万円 / 管理費10,000円
敷
10.5万円礼
無料1K / 25.33㎡ / 6階
賃貸アパート
Gracieux Maison

東武伊勢崎線 / 梅島駅 徒歩8分
築6年 / 2階建
東京都足立区梅田6丁目21-3

7.7万円 / 管理費4,000円
敷
無料礼
7.7万円1DK / 25.09㎡ / 2階
賃貸マンション
ベルシード五反野

東武伊勢崎線 / 五反野駅 徒歩7分
築1年 / 7階建
東京都足立区足立3丁目15-4

8.2万円 / 管理費15,000円
敷
無料礼
8.2万円1K / 25.76㎡ / 6階
賃貸マンション
プレール・ドゥーク梅島

東武伊勢崎線 / 梅島駅 徒歩5分
築7年 / 11階建
東京都足立区梅田6丁目

10.4万円 / 管理費11,000円
敷
無料礼
10.4万円1K / 30.58㎡ / 2階
賃貸マンション
足立区綾瀬1丁目 11階建 2024年築

東武伊勢崎線 / 小菅駅 徒歩14分
築1年 / 11階建
東京都足立区綾瀬1丁目

10.8万円 / 管理費15,000円
敷
無料礼
無料1K / 25.68㎡ / 9階
賃貸マンション
ハニーマンション

東武伊勢崎線 / 梅島駅 徒歩5分
築16年 / 4階建
東京都足立区梅島1丁目

7.7万円 / 管理費5,000円
敷
3.85万円礼
11.55万円1K / 23.73㎡ / 4階
賃貸マンション
プレニーズ五反野MAXIV

東武伊勢崎線 / 五反野駅 徒歩9分
新築 / 11階建
東京都足立区足立4丁目1-10

9.35万円 / 管理費10,000円
敷
無料礼
9.35万円1K / 25.95㎡ / 11階
賃貸マンション
S-RESIDENCE綾瀬rivie

東武伊勢崎線 / 小菅駅 徒歩19分
築2年 / 12階建
東京都足立区綾瀬3丁目16-2

11万円 / 管理費10,000円
敷
無料礼
無料1K / 25.6㎡ / 4階
賃貸マンション
足立区綾瀬 8階建 2012年築
)
東武伊勢崎線 / 小菅駅 徒歩20分
築13年 / 8階建
東京都足立区綾瀬3丁目19-2
)
9.5万円 / 管理費6,000円
敷
9.5万円礼
無料1K / 25.28㎡ / 5階
賃貸マンション
葛飾区堀切 14階建 2021年築
)
東武伊勢崎線 / 小菅駅 徒歩24分
築4年 / 14階建
東京都葛飾区堀切8丁目1-4
)
9.2万円 / 管理費10,000円
敷
無料礼
無料1K / 20.73㎡ / 13階
賃貸マンション
葛飾区堀切 9階建 2021年築
)
東武伊勢崎線 / 小菅駅 徒歩22分
築4年 / 9階建
東京都葛飾区堀切7丁目32-4
)
10.5万円 / 管理費12,000円
敷
無料礼
10.5万円1K / 20.47㎡ / 4階
賃貸マンション
ジェノヴィア五反野スカイガーデン
)
東武伊勢崎線 / 五反野駅 徒歩10分
築4年 / 10階建
東京都足立区梅田2丁目
)
9.6万円 / 管理費10,000円
敷
無料礼
無料1K / 26.1㎡ / 9階
賃貸マンション
FREESIA梅島
)
東武伊勢崎線 / 梅島駅 徒歩11分
築-1年 / 10階建
東京都足立区梅田2丁目
)
9.5万円 / 管理費12,000円
敷
9.5万円礼
9.5万円1LDK / 29.28㎡ / 10階
)
)
)
)
)
)
)
)
)
)
)
)
)
)
)
)










