プリマベーラ1K/3階/302(東京都板橋区 / 志村三丁目駅)の賃貸
1/17
1/17
6万円
初期費用を知りたい管理費5,000円
- 敷金
- 無料
- 保証金
- なし
- 礼金
- 無料
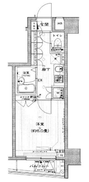
- 広さ
- 18.64㎡
- 階数
- 3階 / 3階建
- 間取り
- 1K
- 建物
- マンション (鉄骨)
- 築年数
- 築21年
- 向き
- 南西
- 交通
- 都営三田線 / 志村三丁目駅バス14分 中央通り[板橋区]下車 徒歩3分
- 東武東上線 / ときわ台駅徒歩10分
- 東武東上線 / 上板橋駅徒歩10分
- 東武東上線 / 中板橋駅徒歩23分
- 住所
- 東京都板橋区常盤台3丁目22-8
東武ストア前野町店 198m
ファミリーマート板橋前野町六丁目店 109m
ミネドラッグときわ台店 374m
EQUiAときわ台 903m
やごうクリニック 93m
水久保公園 298m
無料で10秒! カンタンお問い合わせ

プリマベーラ
敷
無料礼
無料特徴
バス・トイレ別
2階以上
エアコン付き
ペット相談可
駐車場あり
室内洗濯機置場
オートロック
洗面所独立
- 入居条件
- 事務所相談、ペット相談、保証人不要、敷金不要、礼金不要、即入居可最新の空室状況が知りたい
- バス・トイレ
- シャワー、給湯、洗面台、バストイレ別、浴室乾燥機
- キッチン
- IHクッキングヒーター、1口コンロ
- セキュリティ
- オートロック
- 室内設備
- インターネット対応、エアコン、クロゼット、2面採光、室内洗濯置、インターホンお部屋の詳しい情報を知りたい
- 部屋の特徴
- 二階以上、角住戸、最上階写真を送ってほしい
- その他の特徴
- 駐車場あり、都市ガス、公営水道、下水
無料で10秒! カンタンお問い合わせ

プリマベーラ
敷
無料礼
無料同じ建物で掲載中の物件 (1件)
不動産会社からのコメント
24時間サポート 2年毎16500円/事務所利用時、敷金積み増し1ヶ月(償却1ヶ月)/ペット飼育時、敷金積み増し2ヶ月(償却2ヶ月)/室内清掃費用 49500円(退去時)/エアコン清掃費用借主負担(退去時)/短期解約違約金有(半年未満の解約は賃料と管理費を合わせた総賃料の3ヶ月分、1年未満の解約は賃料と管理費を合わせた総賃料の2ヶ月分、2年未満の解約は賃料と管理費を合わせた総賃料の1ヶ月分)
その他
- 駐車/駐輪
- 近隣 費用: 23,760円(税込) 距離: 457m / なし駐車可能な車種や台数を知りたい
- 入居時期
- 損保
- 住宅保険: 要
- 保証人代行
- 連帯保証人: 不要 保証人代行: 必須 保証人代行会社: その他 月額賃料等の50%(初回保証料)、550円/月、2年目以降は1万円/年
- その他費用
初期費用を知りたい鍵交換費:27,500円
室内消毒料:16,500円
- 情報
情報登録日:2026/3/11
情報更新日:2026/4/16
次回更新予定日:2026/4/30
- 備考
- 契約期間: 2年
取扱い会社
- 取扱い会社
- ソレイユ五反田店 (株式会社ソレイユ)条件が近い物件も紹介してほしい
- 免許番号
- 国土交通大臣(5)第7031号
- 取引態様
- 仲介
- 所在地
- 東京都品川区東五反田5丁目27-10 野村ビル 9階
- 電話番号
- 03-5792-5770
- 営業時間
- 10:00~19:00
- 定休日
- 毎週水曜日・第2火曜日
- 所属団体名
- 全日本不動産協会
おすすめ物件 (9件)
賃貸マンション
プレール・ドゥーク練馬NORTH CITY LA
東武東上線 / 上板橋駅 徒歩9分
築22年 / 10階建
東京都練馬区北町1
7.2万円 / 管理費10,000円
敷
無料礼
7.2万円1K / 21.51㎡ / 4階
賃貸マンション
東京都三田線 志村三丁目駅徒歩12分 3階建て 築6年
都営三田線 / 志村三丁目駅 徒歩12分
築7年 / 3階建
東京都板橋区中台2丁目38-24
7.5万円 / 管理費7,000円
敷
無料礼
7.5万円1K / 18.85㎡ / 2階
賃貸マンション
都営三田線 志村三丁目駅 3階建 築7年
都営三田線 / 志村三丁目駅 徒歩9分
築7年 / 3階建
東京都板橋区中台2
7.5万円 / 管理費7,000円
敷
無料礼
7.5万円1K / 18.85㎡ / 2階
賃貸マンション
axia tokiwadai
東武東上線 / ときわ台駅 徒歩5分
築4年 / 4階建
東京都板橋区南常盤台2
7.3万円 / 管理費5,000円
敷
無料礼
無料ワンルーム / 15.8㎡ / 4階
賃貸マンション
プレール・ドゥーク練馬ノースシティエルエー

東武東上線 / 上板橋駅 徒歩9分
築22年 / 10階建
東京都練馬区北町1丁目1-3

7.2万円 / 管理費10,000円
敷
無料礼
7.2万円1K / 21.51㎡ / 4階
賃貸マンション
アヴィニティー上板橋
)
東武東上線 / 上板橋駅 徒歩6分
築20年 / 5階建
東京都板橋区上板橋2丁目
)
7.7万円 / 管理費6,000円
敷
7.7万円礼
7.7万円1K / 22.04㎡ / 3階
賃貸マンション
プレール・ドゥーク練馬ノースシティLA
)
東武東上線 / 上板橋駅 徒歩9分
築22年 / 10階建
東京都練馬区北町1丁目
7.2万円 / 管理費10,000円
敷
無料礼
7.2万円1K / 21.51㎡ / 4階
賃貸マンション
プレール・ドゥーク練馬NORTH CITY LA
東武東上線 / 上板橋駅 徒歩9分
築22年 / 10階建
東京都練馬区北町1
7.2万円 / 管理費10,000円
敷
無料礼
7.2万円1K / 21.51㎡ / 4階
賃貸マンション
東京都三田線 志村三丁目駅徒歩12分 3階建て 築6年
都営三田線 / 志村三丁目駅 徒歩12分
築7年 / 3階建
東京都板橋区中台2丁目38-24
7.5万円 / 管理費7,000円
敷
無料礼
7.5万円1K / 18.85㎡ / 2階
賃貸マンション
都営三田線 志村三丁目駅 3階建 築7年
都営三田線 / 志村三丁目駅 徒歩9分
築7年 / 3階建
東京都板橋区中台2
7.5万円 / 管理費7,000円
敷
無料礼
7.5万円1K / 18.85㎡ / 2階
賃貸マンション
axia tokiwadai
東武東上線 / ときわ台駅 徒歩5分
築4年 / 4階建
東京都板橋区南常盤台2
7.3万円 / 管理費5,000円
敷
無料礼
無料ワンルーム / 15.8㎡ / 4階
賃貸マンション
プレール・ドゥーク練馬ノースシティエルエー

東武東上線 / 上板橋駅 徒歩9分
築22年 / 10階建
東京都練馬区北町1丁目1-3

7.2万円 / 管理費10,000円
敷
無料礼
7.2万円1K / 21.51㎡ / 4階
賃貸マンション
アヴィニティー上板橋
)
東武東上線 / 上板橋駅 徒歩6分
築20年 / 5階建
東京都板橋区上板橋2丁目
)
7.7万円 / 管理費6,000円
敷
7.7万円礼
7.7万円1K / 22.04㎡ / 3階
賃貸マンション
プレール・ドゥーク練馬ノースシティLA
)
東武東上線 / 上板橋駅 徒歩9分
築22年 / 10階建
東京都練馬区北町1丁目
7.2万円 / 管理費10,000円
敷
無料礼
7.2万円1K / 21.51㎡ / 4階



















)
)