シティウォーク練馬1K/4階/0402(東京都練馬区 / 練馬駅)の賃貸
1/24
1/24
9.15万円
初期費用を知りたい管理費15,000円
- 敷金
- 無料
- 保証金
- なし
- 礼金
- 無料
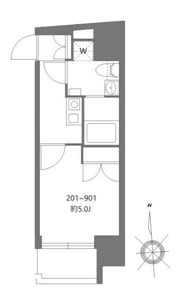
- 広さ
- 18㎡
- 階数
- 4階 / 9階建
- 間取り
- 1K
- 建物
- マンション (鉄筋コンクリート)
- 築年数
- 新築
- 向き
- 南
- 交通
- 西武池袋線 / 練馬駅徒歩6分
- 西武豊島線 / 豊島園駅徒歩8分
- 住所
- 東京都練馬区練馬3丁目3-10
無料で10秒! カンタンお問い合わせ

シティウォーク練馬
敷
無料礼
無料特徴
バス・トイレ別
2階以上
エアコン付き
ペット相談可
駐車場あり
室内洗濯機置場
オートロック
洗面所独立
- 入居条件
- 楽器不可、事務所(SOHO)不可、ペット不可、即入居可最新の空室状況が知りたい
- バス・トイレ
- 専用バス、専用トイレ、バストイレ別、給湯、温水洗浄便座、浴室乾燥機、洗面所独立
- キッチン
- IHクッキングヒーター、2口コンロ
- セキュリティ
- オートロック、防犯カメラ
- 室内設備
- エアコン、室内洗濯置、CS、BS、フローリング、インターネット対応、ネット使用料不要、クロゼット、シューズボックスお部屋の詳しい情報を知りたい
- 部屋の特徴
- バルコニー、二階以上写真を送ってほしい
- 共用部
- エレベーター
- その他の特徴
- 公営水道、都市ガス、下水
無料で10秒! カンタンお問い合わせ

シティウォーク練馬
敷
無料礼
無料同じ建物で掲載中の物件 (20件)
不動産会社からのコメント
新築のお部屋が募集スタート♪収納はシューズボックス・クロゼットなど豊富なので、広々と空間を利用するこ
新築のお部屋が募集スタート♪収納はシューズボックス・クロゼットなど豊富なので、衣類や履き物の整理がしやすく便利です。建物のエントランスには安全性に優れているオートロック機能があります。初期費用分割可能。その他ネット掲載物件ほぼすべてご紹介可能♪白基調やデザイナーズ、ペット可や楽器可なんでもお任せくださいませ! 個々のこだわりやご要望はスタッフまでお気軽にお申し付け下さい。
その他
- 駐車/駐輪
- 要確認 / なし駐車可能な車種や台数を知りたい
- 入居時期
- 損保
- 住宅保険: 要
- 保証人代行
- 加入要 会社名: Casa 費用: ※CASAからの審査になります。 【CASA】月額総賃料の70%(最低保証料20,000円)/月次保証料、月額総賃料の1.5% 【アーク賃貸保証】月額総賃料の40%/次年度以降10,000円※引落し
- その他費用
初期費用を知りたいプレミアデスク(2年/税込):16,500円
契約時ルームクリーニング代(税込):55,000円
- 情報
情報登録日:2025/12/10
情報更新日:2025/12/9
次回更新予定日:2025/12/19
- 備考
- 現況: 空家 状態: 未入居 更新料: 新賃料の1.5ヶ月分 契約期間: 2年 自社管理番号: 215192
取扱い会社
- 取扱い会社
- 株式会社SMC creation Sumaちゃん不動産条件が近い物件も紹介してほしい
- 免許番号
- 東京都知事(1)第110347号
- 取引態様
- 仲介
- 所在地
- 東京都豊島区池袋2-18-2光洋ビル2階
- 電話番号
- 03-5924-6961
- 営業時間
- 10:00~18:30
- 定休日
- 水曜日
- 所属団体名
- 公益社団法人 不動産保証協会
おすすめ物件 (19件)
賃貸マンション
練馬区桜台4丁目 12階建 2019年築

都営大江戸線 / 練馬駅 徒歩6分
築6年 / 12階建
東京都練馬区桜台4丁目

9.3万円 / 管理費12,000円
敷
9.3万円礼
9.3万円1K / 25.91㎡ / 6階
賃貸マンション
練馬区豊玉北3丁目 4階建 2024年築

都営大江戸線 / 練馬駅 徒歩11分
築1年 / 4階建
東京都練馬区豊玉北3丁目

8.4万円 / 管理費15,000円
敷
無料礼
無料1K / 24.39㎡ / 2階
賃貸マンション
練馬区豊玉北4丁目 7階建 2020年築

都営大江戸線 / 練馬駅 徒歩6分
築5年 / 7階建
東京都練馬区豊玉北4丁目

10.5万円 / 管理費10,000円
敷
無料礼
無料1K / 22.07㎡ / 6階
賃貸マンション
練馬区春日町6丁目 4階建 2015年築

西武豊島線 / 豊島園駅 徒歩27分
築10年 / 4階建
東京都練馬区春日町6丁目

10.8万円 / 管理費20,000円
敷
10.8万円礼
無料1K / 25.5㎡ / 3階
賃貸マンション
クレイシア練馬駅前

西武池袋線 / 練馬駅 徒歩2分
築10年 / 12階建
東京都練馬区練馬1丁目

9.3万円 / 管理費12,000円
敷
9.3万円礼
9.3万円1K / 25.61㎡ / 2階
賃貸マンション
CASA PIAZZA練馬
都営大江戸線 / 練馬駅 徒歩6分
築4年 / 5階建
東京都練馬区桜台4
8.6万円 / 管理費5,000円
敷
8.6万円礼
8.6万円1K / 20.48㎡ / 4階
賃貸マンション
練馬区中村北2丁目 5階建 2024年築

西武豊島線 / 豊島園駅 徒歩15分
築1年 / 5階建
東京都練馬区中村北2丁目

9.9万円 / 管理費5,000円
敷
9.9万円礼
9.9万円1K / 26.07㎡ / 2階
賃貸マンション
La Douceur練馬

西武池袋線 / 練馬駅 徒歩6分
築4年 / 6階建
東京都練馬区豊玉上2丁目

9.5万円 / 管理費9,000円
敷
9.5万円礼
9.5万円1K / 21.48㎡ / 2階
賃貸マンション
ユリカロゼ練馬

都営大江戸線 / 豊島園駅 徒歩11分
築9年 / 地上6階地下6階建
東京都練馬区中村北2丁目13-13

8.5万円 / 管理費15,000円
敷
無料礼
8.5万円1K / 25.37㎡ / 6階
賃貸マンション
練馬区豊玉北6丁目 4階建 2024年築

都営大江戸線 / 練馬駅 徒歩7分
築1年 / 4階建
東京都練馬区豊玉北6丁目

10.1万円 / 管理費15,000円
敷
無料礼
無料2K / 25.29㎡ / 3階
賃貸マンション
練馬区桜台4丁目 12階建 2019年築

都営大江戸線 / 練馬駅 徒歩6分
築6年 / 12階建
東京都練馬区桜台4丁目

9.3万円 / 管理費12,000円
敷
9.3万円礼
9.3万円1K / 25.91㎡ / 6階
賃貸マンション
練馬区豊玉北3丁目 4階建 2024年築

都営大江戸線 / 練馬駅 徒歩11分
築1年 / 4階建
東京都練馬区豊玉北3丁目

8.4万円 / 管理費15,000円
敷
無料礼
無料1K / 24.39㎡ / 2階
賃貸マンション
練馬区豊玉北4丁目 7階建 2020年築

都営大江戸線 / 練馬駅 徒歩6分
築5年 / 7階建
東京都練馬区豊玉北4丁目

10.5万円 / 管理費10,000円
敷
無料礼
無料1K / 22.07㎡ / 6階
賃貸マンション
練馬区春日町6丁目 4階建 2015年築

西武豊島線 / 豊島園駅 徒歩27分
築10年 / 4階建
東京都練馬区春日町6丁目

10.8万円 / 管理費20,000円
敷
10.8万円礼
無料1K / 25.5㎡ / 3階
賃貸マンション
クレイシア練馬駅前

西武池袋線 / 練馬駅 徒歩2分
築10年 / 12階建
東京都練馬区練馬1丁目

9.3万円 / 管理費12,000円
敷
9.3万円礼
9.3万円1K / 25.61㎡ / 2階
賃貸マンション
CASA PIAZZA練馬
都営大江戸線 / 練馬駅 徒歩6分
築4年 / 5階建
東京都練馬区桜台4
8.6万円 / 管理費5,000円
敷
8.6万円礼
8.6万円1K / 20.48㎡ / 4階
賃貸マンション
練馬区中村北2丁目 5階建 2024年築

西武豊島線 / 豊島園駅 徒歩15分
築1年 / 5階建
東京都練馬区中村北2丁目

9.9万円 / 管理費5,000円
敷
9.9万円礼
9.9万円1K / 26.07㎡ / 2階
賃貸マンション
La Douceur練馬

西武池袋線 / 練馬駅 徒歩6分
築4年 / 6階建
東京都練馬区豊玉上2丁目

9.5万円 / 管理費9,000円
敷
9.5万円礼
9.5万円1K / 21.48㎡ / 2階
賃貸マンション
ユリカロゼ練馬

都営大江戸線 / 豊島園駅 徒歩11分
築9年 / 地上6階地下6階建
東京都練馬区中村北2丁目13-13

8.5万円 / 管理費15,000円
敷
無料礼
8.5万円1K / 25.37㎡ / 6階
賃貸マンション
練馬区豊玉北6丁目 4階建 2024年築

都営大江戸線 / 練馬駅 徒歩7分
築1年 / 4階建
東京都練馬区豊玉北6丁目

10.1万円 / 管理費15,000円
敷
無料礼
無料2K / 25.29㎡ / 3階
同じ最寄り駅 × 同じ特徴 で探す
同じ市区町村 × 同じ特徴 で探す










































)











