スカイコートヌーベル中村橋1K/3階(東京都練馬区 / 中村橋駅)の賃貸
1/20
1/20
8.01万円
初期費用を知りたい管理費7,400円
- 敷金
- 8.01万円
- 保証金
- なし
- 礼金
- 8.01万円
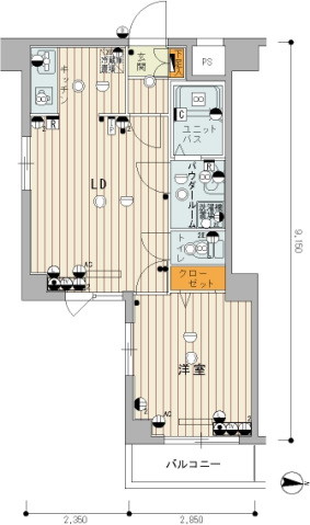
- 広さ
- 22.63㎡
- 階数
- 3階 / 7階建
- 間取り
- 1K
- 建物
- マンション (鉄筋コンクリート)
- 築年数
- 築19年
- 向き
- 南
- 交通
- 西武池袋線 / 中村橋駅徒歩5分
- 西武池袋線 / 富士見台駅徒歩7分
- 西武新宿線 / 鷺ノ宮駅徒歩24分
- 住所
- 東京都練馬区貫井1
Emio富士見台(ショッピングセンター)まで762m
コモディイイダ中村橋店(スーパー)まで152m
まいばすけっと中村橋駅北店(スーパー)まで372m
セブンイレブン練馬中村橋駅北店(コンビニ)まで374m
ファミリーマート中村橋駅西店(コンビニ)まで406m
マツモトキヨシ中村橋駅前店(ドラッグストア)まで434m
無料で10秒! カンタンお問い合わせ
スカイコートヌーベル中村橋
敷
8.01万円礼
8.01万円特徴
バス・トイレ別
2階以上
エアコン付き
ペット相談可
駐車場あり
室内洗濯機置場
オートロック
洗面所独立
- 入居条件
- 保証人不要、敷金1ヶ月、保証金不要、礼金1ヶ月最新の空室状況が知りたい
- バス・トイレ
- バストイレ別、浴室乾燥機、温水洗浄便座、洗面化粧台
- キッチン
- ガスコンロ対応、システムキッチン、2口コンロ
- セキュリティ
- オートロック、防犯カメラ
- 室内設備
- エアコン、クロゼット、フローリング、室内洗濯置、シューズボックス、CATV、光ファイバー、BS・CS、照明付、全居室洋室、全居室フローリング、CS、エアコン全室、24時間換気システム、BSお部屋の詳しい情報を知りたい
- 部屋の特徴
- バルコニー、陽当り良好、角住戸、通風良好、二階以上写真を送ってほしい
- 共用部
- エレベーター、宅配ボックス、敷地内ごみ置き場
- その他の特徴
- 外壁タイル張り、分譲賃貸、眺望良好、都市ガス、保証会社利用可
無料で10秒! カンタンお問い合わせ
スカイコートヌーベル中村橋
敷
8.01万円礼
8.01万円同じ建物で掲載中の物件 (1件)
不動産会社からのコメント
★気になる物件まとめて内見受付中!お部屋探しはサガスムへ★
☆都内全ての物件がご案内可能です。オンラインにて申込みから契約までのお手続きも。他社様掲載物件のお見積もり、物件提案のご要望など、お気軽にお問い合わせください。初期費用分割払いも承ります!
その他
- 駐車/駐輪
- 要確認 / なし駐車可能な車種や台数を知りたい
- 入居時期
- 損保
- -
- 保証人代行
- -
- その他費用
合計3.52万円(内訳:消火剤 5500円 鍵交換代 29700円) 初期費用を知りたい- 情報
情報登録日:2026/1/28
情報更新日:2026/2/5
次回更新予定日:2026/2/21
- 備考
- 契約期間: 普通借家 2年 保証会社: 保証会社利用必 エポスカード ※〔初回保証委託料〕(家賃+管理費+生活安心パック)×50%〔月々〕総賃料×1.4% その他:更新料 新賃料 1.5ヶ月 / 条件: 単身者限定/子供可 / ほか初期費用: 合計3.52万円(内訳:消火剤 5500円 鍵交換代 29700円) / ほか諸費用: 生活安心パック 月額1,650円/月
取扱い会社
- 取扱い会社
- 株式会社sagasumu池袋店条件が近い物件も紹介してほしい
- 免許番号
- 東京都知事 (1) 第107846号
- 取引態様
- 一般媒介
- 所在地
- 東京都豊島区池袋2-17-8 天翔オフィス1階
- 電話番号
- 03-5927-9900
- 営業時間
- 10:00~18:00
- 定休日
- 水曜日(1月〜3月は無休)
- 所属団体名
- (公社)全日本不動産協会
おすすめ物件 (20件)
賃貸マンション
練馬区 5階建 2016年築

西武新宿線 / 鷺ノ宮駅 徒歩12分
築10年 / 5階建
東京都練馬区中村南2丁目6-10

9.9万円 / 管理費5,000円
敷
無料礼
9.9万円1K / 26.93㎡ / 2階
賃貸マンション
Branche阿佐ヶ谷

西武新宿線 / 鷺ノ宮駅 徒歩17分
築6年 / 4階建
東京都杉並区阿佐谷北3丁目37-12

9.7万円 / 管理費10,000円
敷
無料礼
4.85万円ワンルーム / 23.69㎡ / 4階
賃貸マンション
西武池袋・豊島線 中村橋駅 築8年 6階建て
西武池袋線 / 中村橋駅 徒歩8分
築9年 / 6階建
東京都練馬区向山2丁目6-10
8.7万円 / 管理費8,000円
敷
無料礼
8.7万円1K / 25.74㎡ / 3階
賃貸マンション
GROWS練馬高野台
西武池袋線 / 富士見台駅 徒歩24分
築8年 / 5階建
東京都練馬区高野台2
7.95万円 / 管理費10,000円
敷
無料礼
7.95万円1K / 25.96㎡ / 5階
賃貸マンション
プラウドフラット富士見台
西武池袋線 / 富士見台駅 徒歩1分
築16年 / 9階建
東京都練馬区貫井3
9.5万円 / 管理費8,000円
敷
9.5万円礼
9.5万円1K / 20.67㎡ / 4階
賃貸アパート
El Camino(エル カミーノ)
西武池袋線 / 富士見台駅 徒歩5分
築2年 / 3階建
東京都練馬区貫井1
8.4万円 / 管理費5,000円
敷
8.4万円礼
8.4万円1K / 22.6㎡ / 3階
賃貸マンション
GENOVIA練馬高野台skyrun
西武池袋線 / 富士見台駅 徒歩19分
築7年 / 6階建
東京都練馬区南田中2
9万円 / 管理費10,000円
敷
無料礼
無料1K / 25.7㎡ / 2階
賃貸マンション
Branche鷺ノ宮Ⅱ

西武新宿線 / 鷺ノ宮駅 徒歩10分
築12年 / 4階建
東京都練馬区中村南3丁目18-5

9.3万円 / 管理費10,000円
敷
無料礼
無料ワンルーム / 21.58㎡ / 4階
賃貸マンション
練馬区 5階建 2016年築

西武新宿線 / 鷺ノ宮駅 徒歩12分
築10年 / 5階建
東京都練馬区中村南2丁目6-10

9.9万円 / 管理費5,000円
敷
無料礼
9.9万円1K / 26.93㎡ / 2階
賃貸マンション
Branche阿佐ヶ谷

西武新宿線 / 鷺ノ宮駅 徒歩17分
築6年 / 4階建
東京都杉並区阿佐谷北3丁目37-12

9.7万円 / 管理費10,000円
敷
無料礼
4.85万円ワンルーム / 23.69㎡ / 4階
賃貸マンション
西武池袋・豊島線 中村橋駅 築8年 6階建て
西武池袋線 / 中村橋駅 徒歩8分
築9年 / 6階建
東京都練馬区向山2丁目6-10
8.7万円 / 管理費8,000円
敷
無料礼
8.7万円1K / 25.74㎡ / 3階
賃貸マンション
GROWS練馬高野台
西武池袋線 / 富士見台駅 徒歩24分
築8年 / 5階建
東京都練馬区高野台2
7.95万円 / 管理費10,000円
敷
無料礼
7.95万円1K / 25.96㎡ / 5階
賃貸マンション
プラウドフラット富士見台
西武池袋線 / 富士見台駅 徒歩1分
築16年 / 9階建
東京都練馬区貫井3
9.5万円 / 管理費8,000円
敷
9.5万円礼
9.5万円1K / 20.67㎡ / 4階
賃貸アパート
El Camino(エル カミーノ)
西武池袋線 / 富士見台駅 徒歩5分
築2年 / 3階建
東京都練馬区貫井1
8.4万円 / 管理費5,000円
敷
8.4万円礼
8.4万円1K / 22.6㎡ / 3階
賃貸マンション
GENOVIA練馬高野台skyrun
西武池袋線 / 富士見台駅 徒歩19分
築7年 / 6階建
東京都練馬区南田中2
9万円 / 管理費10,000円
敷
無料礼
無料1K / 25.7㎡ / 2階
賃貸マンション
Branche鷺ノ宮Ⅱ

西武新宿線 / 鷺ノ宮駅 徒歩10分
築12年 / 4階建
東京都練馬区中村南3丁目18-5

9.3万円 / 管理費10,000円
敷
無料礼
無料ワンルーム / 21.58㎡ / 4階



