NSGATE富士見台next1K/1階/101(東京都練馬区 / 富士見台駅)の賃貸
1/24
1/24
7.2万円
初期費用を知りたい管理費3,000円
- 敷金
- 7.2万円
- 保証金
- なし
- 礼金
- 7.2万円
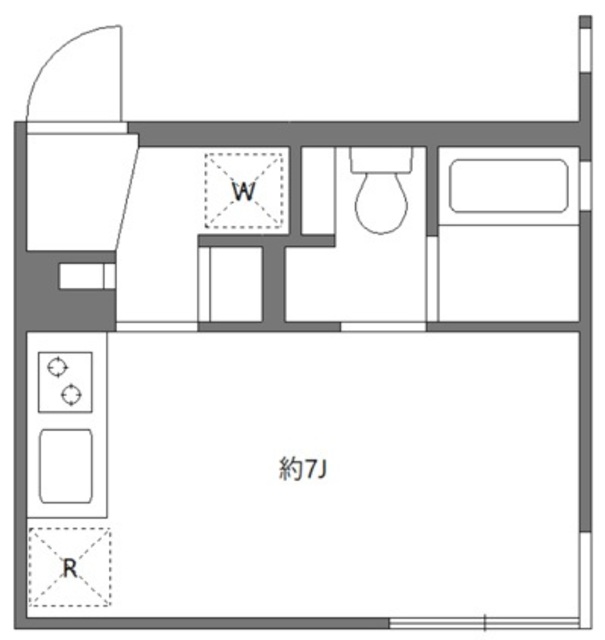
- 広さ
- 18.05㎡
- 階数
- 1階 / 3階建
- 間取り
- 1K
- 建物
- アパート (鉄骨)
- 築年数
- 新築
- 向き
- 北
- 交通
- 西武池袋線 / 富士見台駅徒歩6分
- 西武池袋線 / 中村橋駅徒歩7分
- 西武池袋線 / 練馬高野台駅徒歩25分
- 西武池袋線 / 豊島園駅徒歩26分
- 都営大江戸線 / 練馬春日町駅徒歩28分
- 住所
- 東京都練馬区貫井1丁目31-7
エミオ 富士見台 505m
コモディイイダ 中村橋店 213m
ファミリーマート 中村橋駅西店 452m
薬 マツモトキヨシ 富士見台駅前店 559m
キッチンオリジン 富士見台店 477m
千川通りあさのクリニック 253m
無料で10秒! カンタンお問い合わせ

NSGATE富士見台next
敷
7.2万円礼
7.2万円特徴
バス・トイレ別
2階以上
エアコン付き
ペット相談可
駐車場あり
室内洗濯機置場
オートロック
洗面所独立
- 入居条件
- 事務所不可、即入居可最新の空室状況が知りたい
- バス・トイレ
- シャワー、給湯、洗面台、バストイレ別、脱衣所、温水洗浄便座、洗面所独立
- キッチン
- ガスコンロ対応、2口コンロ
- セキュリティ
- 防犯カメラ、オートロック
- 室内設備
- インターネット対応、CATV、エアコン、2面採光、室内洗濯置、フローリングお部屋の詳しい情報を知りたい
- 部屋の特徴
- 角住戸、バルコニー、テラス写真を送ってほしい
- 共用部
- 宅配ボックス
- その他の特徴
- 駐車場あり、都市ガス、公営水道、下水、外壁タイル張り
無料で10秒! カンタンお問い合わせ

NSGATE富士見台next
敷
7.2万円礼
7.2万円不動産会社からのコメント
更新事務手数料/5500円支払手数料(毎月月額合計の1%)/日神サポートパック料として月額1100円かかります(24時間受付対応住宅総合保険を含む)/退去時エアコン洗浄代16500円台/CATVでBSCS視聴可(CATVBS別途契約要有償)/鍵交換代借主負担
その他
- 駐車/駐輪
- 近隣 費用: 20,950円(税込) 距離: 650m / なし駐車可能な車種や台数を知りたい
- 入居時期
- 損保
- 住宅保険: 要
- 保証人代行
- 保証人代行: 必須 保証人代行会社: その他 初回:賃料等の60%、1年毎:1万円
- その他費用
- 情報
情報登録日:2025/9/17
情報更新日:2025/12/19
次回更新予定日:2026/1/2
- 備考
- CATVでBSCS視聴可(CATVBS別途契約要有償)/鍵交換代借主負担 契約期間: 2年
取扱い会社
- 取扱い会社
- アエラスひばりヶ丘店 (株式会社アエラス.ER)条件が近い物件も紹介してほしい
- 免許番号
- 国土交通大臣(1)第10724号
- 取引態様
- 仲介
- 所在地
- 東京都西東京市谷戸町3丁目27-11 JCビル 1階
- 電話番号
- 042-438-8681
- 営業時間
- 10:00~19:00
- 定休日
- アエラス石神井公園・所沢で営業
- 所属団体名
- 全日本不動産協会
おすすめ物件 (20件)
賃貸マンション
Branche鷺ノ宮
西武池袋線 / 中村橋駅 徒歩11分
築17年 / 4階建
東京都練馬区中村南3丁目18-2
8万円 / 管理費15,000円
敷
無料礼
無料ワンルーム / 22.4㎡ / 1階
賃貸マンション
ジェノヴィア練馬高野台スカイラン

西武池袋線 / 練馬高野台駅 徒歩10分
築6年 / 6階建
東京都練馬区南田中2丁目10-10

8.1万円 / 管理費15,000円
敷
無料礼
16.2万円1K / 25.7㎡ / 5階
賃貸マンション
練馬区南田中2丁目 6階建 2019年築

西武池袋線 / 練馬高野台駅 徒歩10分
築6年 / 6階建
東京都練馬区南田中2丁目10-10

8.1万円 / 管理費15,000円
敷
無料礼
16.2万円1K / 25.7㎡ / 5階
賃貸マンション
西武池袋線 練馬駅 5階建 築3年
西武池袋線 / 中村橋駅 徒歩10分
築2年 / 5階建
東京都練馬区中村北1
9.1万円 / 管理費6,900円
敷
無料礼
18.2万円1K / 25.76㎡ / 1階
賃貸マンション
西武池袋線 練馬駅 10階建 築15年
西武池袋線 / 中村橋駅 徒歩11分
築14年 / 10階建
東京都練馬区中村北1
9.15万円 / 管理費6,400円
敷
無料礼
12万円ワンルーム / 27.6㎡ / 2階
賃貸マンション
Esperanza Nerima
西武池袋線 / 中村橋駅 徒歩7分
築15年 / 10階建
東京都練馬区向山1
家賃カード決済可
8.9万円 / 管理費10,000円
敷
無料礼
8.9万円1K / 27.01㎡ / 1階
賃貸マンション
都営大江戸線 光が丘駅 3階建 築5年
都営大江戸線 / 練馬春日町駅 徒歩31分
築4年 / 3階建
東京都練馬区高松5
8.1万円 / 管理費3,000円
敷
8.1万円礼
8.1万円1K / 20.05㎡ / 2階
賃貸マンション
ラフィスタ練馬

西武池袋線 / 練馬高野台駅 徒歩13分
築9年 / 4階建
東京都練馬区南田中4丁目

8.2万円 / 管理費15,000円
敷
8.2万円礼
8.2万円1K / 25.54㎡ / 2階
賃貸マンション
中野区鷺宮6丁目 5階建 2017年築

西武池袋線 / 富士見台駅 徒歩15分
築8年 / 5階建
東京都中野区鷺宮6丁目

9万円 / 管理費5,000円
敷
9万円礼
9万円1K / 25.26㎡ / 3階
賃貸マンション
DIPS練馬春日町

都営大江戸線 / 練馬春日町駅 徒歩5分
築2年 / 5階建
東京都練馬区春日町3丁目19-22

9万円 / 管理費15,000円
敷
無料礼
9万円1K / 25.72㎡ / 3階
賃貸アパート
ブリーズTagara

都営大江戸線 / 練馬春日町駅 徒歩23分
新築 / 3階建
東京都練馬区田柄1丁目25-11

7.4万円 / 管理費5,000円
敷
無料礼
無料ワンルーム / 17㎡ / 1階
賃貸マンション
アプレシティ豊島園

西武池袋線 / 豊島園駅 徒歩1分
築20年 / 10階建
東京都練馬区練馬4丁目15-18

7.5万円 / 管理費20,000円
敷
無料礼
7.5万円1K / 23.84㎡ / 5階
賃貸マンション
モデリスタ

西武池袋線 / 練馬高野台駅 徒歩10分
築15年 / 5階建
東京都練馬区富士見台4丁目3-20

6.5万円 / 管理費4,000円
敷
6.5万円礼
無料ワンルーム / 20.75㎡ / 1階
賃貸マンション
FARE練馬Ⅱ

都営大江戸線 / 豊島園駅 徒歩3分
築5年 / 4階建
東京都練馬区練馬4丁目13-2

8.3万円 / 管理費5,000円
敷
8.3万円礼
8.3万円ワンルーム / 19.23㎡ / 3階
賃貸マンション
Branche鷺ノ宮
西武池袋線 / 中村橋駅 徒歩11分
築17年 / 4階建
東京都練馬区中村南3丁目18-2
8万円 / 管理費15,000円
敷
無料礼
無料ワンルーム / 22.4㎡ / 1階
賃貸マンション
ジェノヴィア練馬高野台スカイラン

西武池袋線 / 練馬高野台駅 徒歩10分
築6年 / 6階建
東京都練馬区南田中2丁目10-10

8.1万円 / 管理費15,000円
敷
無料礼
16.2万円1K / 25.7㎡ / 5階
賃貸マンション
練馬区南田中2丁目 6階建 2019年築

西武池袋線 / 練馬高野台駅 徒歩10分
築6年 / 6階建
東京都練馬区南田中2丁目10-10

8.1万円 / 管理費15,000円
敷
無料礼
16.2万円1K / 25.7㎡ / 5階
賃貸マンション
西武池袋線 練馬駅 5階建 築3年
西武池袋線 / 中村橋駅 徒歩10分
築2年 / 5階建
東京都練馬区中村北1
9.1万円 / 管理費6,900円
敷
無料礼
18.2万円1K / 25.76㎡ / 1階
賃貸マンション
西武池袋線 練馬駅 10階建 築15年
西武池袋線 / 中村橋駅 徒歩11分
築14年 / 10階建
東京都練馬区中村北1
9.15万円 / 管理費6,400円
敷
無料礼
12万円ワンルーム / 27.6㎡ / 2階
賃貸マンション
Esperanza Nerima
西武池袋線 / 中村橋駅 徒歩7分
築15年 / 10階建
東京都練馬区向山1
家賃カード決済可
8.9万円 / 管理費10,000円
敷
無料礼
8.9万円1K / 27.01㎡ / 1階
賃貸マンション
都営大江戸線 光が丘駅 3階建 築5年
都営大江戸線 / 練馬春日町駅 徒歩31分
築4年 / 3階建
東京都練馬区高松5
8.1万円 / 管理費3,000円
敷
8.1万円礼
8.1万円1K / 20.05㎡ / 2階
賃貸マンション
ラフィスタ練馬

西武池袋線 / 練馬高野台駅 徒歩13分
築9年 / 4階建
東京都練馬区南田中4丁目

8.2万円 / 管理費15,000円
敷
8.2万円礼
8.2万円1K / 25.54㎡ / 2階
賃貸マンション
中野区鷺宮6丁目 5階建 2017年築

西武池袋線 / 富士見台駅 徒歩15分
築8年 / 5階建
東京都中野区鷺宮6丁目

9万円 / 管理費5,000円
敷
9万円礼
9万円1K / 25.26㎡ / 3階
賃貸マンション
DIPS練馬春日町

都営大江戸線 / 練馬春日町駅 徒歩5分
築2年 / 5階建
東京都練馬区春日町3丁目19-22

9万円 / 管理費15,000円
敷
無料礼
9万円1K / 25.72㎡ / 3階
賃貸アパート
ブリーズTagara

都営大江戸線 / 練馬春日町駅 徒歩23分
新築 / 3階建
東京都練馬区田柄1丁目25-11

7.4万円 / 管理費5,000円
敷
無料礼
無料ワンルーム / 17㎡ / 1階
賃貸マンション
アプレシティ豊島園

西武池袋線 / 豊島園駅 徒歩1分
築20年 / 10階建
東京都練馬区練馬4丁目15-18

7.5万円 / 管理費20,000円
敷
無料礼
7.5万円1K / 23.84㎡ / 5階
賃貸マンション
モデリスタ

西武池袋線 / 練馬高野台駅 徒歩10分
築15年 / 5階建
東京都練馬区富士見台4丁目3-20

6.5万円 / 管理費4,000円
敷
6.5万円礼
無料ワンルーム / 20.75㎡ / 1階
賃貸マンション
FARE練馬Ⅱ

都営大江戸線 / 豊島園駅 徒歩3分
築5年 / 4階建
東京都練馬区練馬4丁目13-2

8.3万円 / 管理費5,000円
敷
8.3万円礼
8.3万円ワンルーム / 19.23㎡ / 3階
同じ最寄り駅 × 同じ特徴 で探す
同じ市区町村 × 同じ特徴 で探す





























