レオパレスエスポワール六郷1SLDK/3階/303(東京都大田区 / 六郷土手駅)の賃貸
1/27
1/27
15.2万円
初期費用を知りたい管理費7,500円
家賃割引サービス適用で最大2年間4.8万円割引
- 敷金
- 無料
- 保証金
- なし
- 礼金
- 15.2万円
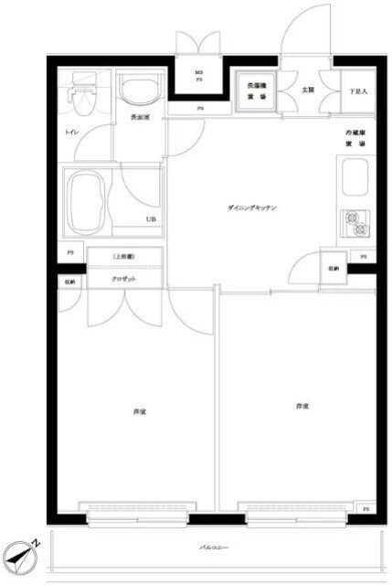
- 広さ
- 41.63㎡
- 階数
- 3階 / 3階建
- 間取り
- 1SLDK
- 建物
- マンション (鉄骨)
- 築年数
- 築16年
- 向き
- 南東
- 交通
- 京急本線 / 六郷土手駅徒歩12分
- 京急本線 / 雑色駅徒歩14分
- 住所
- 東京都大田区西六郷3丁目22-10
コンビニエンスストア 120m
スーパーマーケット 640m
ドラッグストア 730m
無料で10秒! カンタンお問い合わせ
レオパレスエスポワール六郷
敷
無料礼
15.2万円特徴
バス・トイレ別
2階以上
エアコン付き
ペット相談可
駐車場あり
室内洗濯機置場
オートロック
洗面所独立
- 入居条件
- 二人入居可、保証人不要、即入居可最新の空室状況が知りたい
- バス・トイレ
- バストイレ別、給湯、温水洗浄便座、浴室乾燥機、専用バス、専用トイレ、洗面所独立
- キッチン
- 電気コンロ、3口以上コンロ、システムキッチン
- セキュリティ
- オートロック、24時間セキュリティ
- 室内設備
- エアコン、室内洗濯置、インターネット対応、冷蔵庫付、フローリング、クロゼット、シューズボックス、家具・家電付お部屋の詳しい情報を知りたい
- 部屋の特徴
- バルコニー、角住戸、二階以上、最上階写真を送ってほしい
- その他の特徴
- 都市ガス、公営水道、下水
無料で10秒! カンタンお問い合わせ
レオパレスエスポワール六郷
敷
無料礼
15.2万円不動産会社からのコメント
★クレジット/分割決済可能★オンライン見学受付中★その他専任物件多数ございます★
東京を中心に人気エリアの賃貸マンション・アパート情報が豊富!創業45年 直営140店舗以上の独自のネットワークで最適なマンション・アパートをお探し!お部屋探しからご契約までオンラインでご対応できます!
その他
- 駐車/駐輪
- 無 / なし駐車可能な車種や台数を知りたい
- 入居時期
- 損保
- 住宅保険: 要
- 保証人代行
- 加入要 会社名: その他 費用: 保証人代行会社 プラザ賃貸管理保証賃貸保証料 100%保証人代行詳細 初回保証料月額総支払額の100%or120%年間保証料1万円
- その他費用
初期費用を知りたい鍵交換費:10,260円
環境維持費:540円
鍵交換費用:16,500円
室内清掃費用:52,800円
- 情報
情報登録日:2025/10/3
情報更新日:2025/12/16
次回更新予定日:2025/12/25
- 備考
- 現況: 空家 更新料: 16,500円 契約期間: 2年 総戸数: 28戸
取扱い会社
- 取扱い会社
- 株式会社タウンハウジング 目黒店条件が近い物件も紹介してほしい
- 免許番号
- 国土交通大臣(1)9926号
- 取引態様
- 仲介
- 所在地
- 東京都品川区上大崎2-15-18 目黒東豊ビル2F
- 電話番号
- 03-5791-0061
- 所属団体名
- 東京都宅地建物取引業協会
おすすめ物件 (9件)
賃貸マンション
仲六郷ガーデン

京急本線 / 雑色駅 徒歩6分
築13年 / 3階建
東京都大田区仲六郷3丁目16-2

14.4万円 / 管理費8,000円
敷
無料礼
21.6万円1LDK / 37.56㎡ / 2階
賃貸マンション
アヴォルトフェリーチェ蒲田サウス
京急本線 / 雑色駅 徒歩5分
築2年 / 6階建
東京都大田区東六郷1
15.9万円 / 管理費10,000円
敷
15.9万円礼
15.9万円1LDK / 39.13㎡ / 4階
賃貸マンション
ジェノヴィア本羽田スカイガーデン

京急本線 / 雑色駅 徒歩15分
築6年 / 6階建
東京都大田区本羽田1丁目

16.3万円 / 管理費11,000円
敷
無料礼
16.3万円1LDK / 41.03㎡ / 2階
賃貸マンション
大田区仲六郷1丁目 3階建 2022年築

京急本線 / 雑色駅 徒歩7分
築3年 / 3階建
東京都大田区仲六郷1丁目

13.4万円 / 管理費4,000円
敷
13.4万円礼
26.8万円1LDK / 42.14㎡ / 2階
賃貸マンション
ラフィスタ蒲田南Ⅱ

京急本線 / 雑色駅 徒歩13分
築4年 / 6階建
東京都大田区西六郷1丁目

15.6万円 / 管理費10,000円
敷
15.6万円礼
15.6万円1LDK / 42.48㎡ / 2階
賃貸マンション
アーバンパーク蒲田南I
京急本線 / 雑色駅 徒歩10分
築3年 / 5階建
東京都大田区東六郷1丁目11-5
16.6万円 / 管理費12,000円
敷
16.6万円礼
無料1LDK / 40.9㎡ / 2階
賃貸マンション
アーバンパーク蒲田南Ⅱ

京急本線 / 雑色駅 徒歩10分
築2年 / 6階建
東京都大田区東六郷1丁目11-6

17.1万円 / 管理費12,000円
敷
17.1万円礼
無料2DK / 41.04㎡ / 5階
賃貸マンション
仲六郷ガーデン

京急本線 / 雑色駅 徒歩6分
築13年 / 3階建
東京都大田区仲六郷3丁目16-2

14.4万円 / 管理費8,000円
敷
無料礼
21.6万円1LDK / 37.56㎡ / 2階
賃貸マンション
アヴォルトフェリーチェ蒲田サウス
京急本線 / 雑色駅 徒歩5分
築2年 / 6階建
東京都大田区東六郷1
15.9万円 / 管理費10,000円
敷
15.9万円礼
15.9万円1LDK / 39.13㎡ / 4階
賃貸マンション
ジェノヴィア本羽田スカイガーデン

京急本線 / 雑色駅 徒歩15分
築6年 / 6階建
東京都大田区本羽田1丁目

16.3万円 / 管理費11,000円
敷
無料礼
16.3万円1LDK / 41.03㎡ / 2階
賃貸マンション
大田区仲六郷1丁目 3階建 2022年築

京急本線 / 雑色駅 徒歩7分
築3年 / 3階建
東京都大田区仲六郷1丁目

13.4万円 / 管理費4,000円
敷
13.4万円礼
26.8万円1LDK / 42.14㎡ / 2階
賃貸マンション
ラフィスタ蒲田南Ⅱ

京急本線 / 雑色駅 徒歩13分
築4年 / 6階建
東京都大田区西六郷1丁目

15.6万円 / 管理費10,000円
敷
15.6万円礼
15.6万円1LDK / 42.48㎡ / 2階
賃貸マンション
アーバンパーク蒲田南I
京急本線 / 雑色駅 徒歩10分
築3年 / 5階建
東京都大田区東六郷1丁目11-5
16.6万円 / 管理費12,000円
敷
16.6万円礼
無料1LDK / 40.9㎡ / 2階
賃貸マンション
アーバンパーク蒲田南Ⅱ

京急本線 / 雑色駅 徒歩10分
築2年 / 6階建
東京都大田区東六郷1丁目11-6

17.1万円 / 管理費12,000円
敷
17.1万円礼
無料2DK / 41.04㎡ / 5階
同じ最寄り駅 × 同じ特徴 で探す
同じ市区町村 × 同じ特徴 で探す
)
)
)




