3万円以下
15万円
100万円以上
港区六本木5丁目 12階建 2016年築
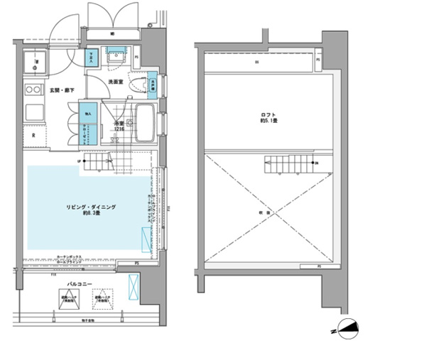
ズーム芝浦
ミュゼ南麻布
港区 14階建 2023年築
カナルフロント芝浦
港区 地上13階地下1階建 2005年築
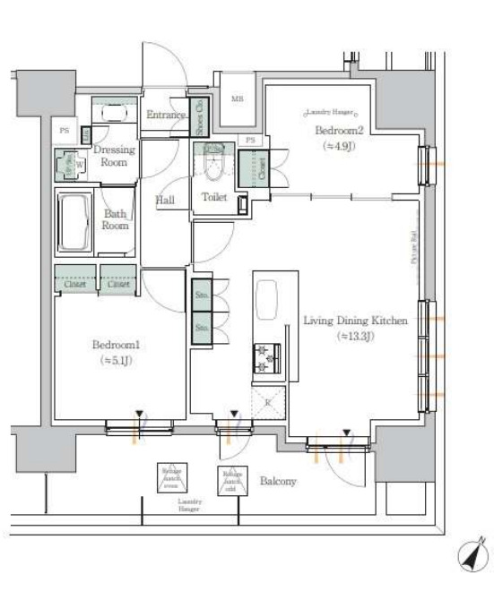
パークアクシス溜池山王
ONEROOFRESIDENCETAMACHI
K&W西新橋
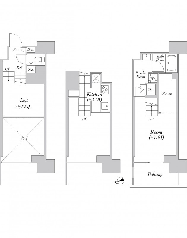
ブランシック白金台
ZOOM芝浦