3万円以下
15万円
100万円以上
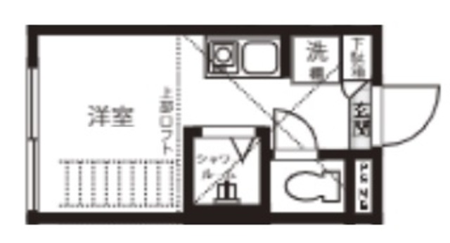
レジデンスK3
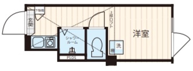
FLAMP
ハーモニーテラス上高田
ハーモニーテラス東中野
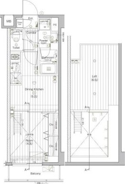
中野区中野6丁目 2階建 2019年築
パークレジナス中野
中野区 2階建 2020年築
ノースヒル新宿ウエスト
PREMIUMCUBEG北新宿DEUX
PontduGard