West sedona(神奈川県川崎市多摩区 / 向ヶ丘遊園駅) の賃貸物件情報
募集中のお部屋が1件あります
1/19
1/19
- 建物
- マンション (鉄骨)
- 築年数
- 築1年 (2025年)
- 駐車場
- 近隣 費用: 16,500円 税: 税込み 距離: 300m
- 交通
- 小田急小田原線 / 向ヶ丘遊園駅徒歩16分
- 南武線 / 中野島駅徒歩16分
- 住所
- 神奈川県川崎市多摩区登戸163
- コンビニエンスストア 440m
- スーパーマーケット 780m
- ドラッグストア 600m
- 紳士服コナカ登戸店 590m
その他
- 駐車/駐輪
- 近隣 費用: 16,500円 税: 税込み 距離: 300m
- 入居時期
- 即
- 損保
- 住宅保険: 要
- 保証代行人
- 利用可 会社名: その他 費用: 初回総額賃料の50% 2年間更新毎2万円
- その他費用
- -
- 情報
情報登録日:2026/3/31
情報更新日:2026/4/23
次回更新予定日:2026/5/22
- 備考
- 現況: 空家 更新料: 新賃料の1.0ヶ月分 契約期間: 2年
この建物からのPick Up
1LDK/4階
1/30
1/30
15.8 万円 / 管理費12,000円
適用で最大2年間4.8万円割引
本物件のヘヤワリ適用可否については、不動産会社へご確認ください。
- 敷金
- 15.8万円
- 保証金
- なし
- 礼金
- 無料
- 広さ
- 46.44㎡
- 階数
- 4階 / 4階建
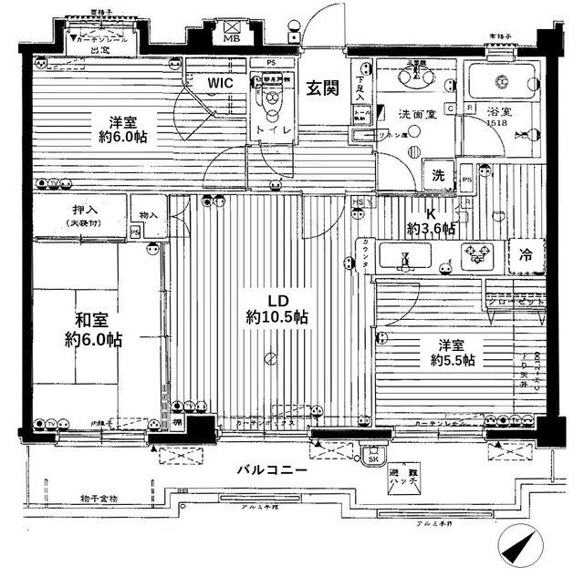
- 間取り
- 1LDK (LDK12.8帖 / 洋6.0帖)
- 向き
- 南
無料で10秒! カンタンお問い合わせ
West sedona
敷
15.8万円礼
無料特徴
バス・トイレ別
2階以上
エアコン付き
ペット相談可
駐車場あり
室内洗濯機置場
オートロック
洗面所独立
- 入居条件
- 即入居可、ペット相談、猫可、保証人不要、小型犬可、二人入居可
- バス・トイレ
- 専用バス、追焚機能浴室、浴室乾燥機、給湯、バストイレ別、シャワー付洗面化粧台、専用トイレ、シャワー、温水洗浄便座、洗面所独立
- キッチン
- システムキッチン、IHクッキングヒーター
- セキュリティ
- オートロック、防犯カメラ
- 室内設備
- BS、クロゼット、ネット使用料不要、床暖房、エアコン、インターネット対応、室内洗濯置、フローリング、シューズボックス
- 部屋の特徴
- 角住戸、バルコニー、二階以上、最上階
- 共用部
- エレベーター、宅配ボックス
- その他の特徴
- 最寄り駅が始発駅、都市ガス
無料で10秒! カンタンお問い合わせ
West sedona
敷
15.8万円礼
無料おすすめ物件 (10件)
賃貸マンション
バードタウン2番館

南武線 / 中野島駅 徒歩9分
築32年 / 6階建
神奈川県川崎市多摩区中野島3丁目5-24

15.5万円 / 管理費8,000円
敷
15.5万円礼
15.5万円3LDK / 79㎡ / 2階
賃貸マンション
ハビテーション向丘
)
小田急小田原線 / 向ヶ丘遊園駅 バス11分 神木本町下車 徒歩6分
築32年 / 5階建
神奈川県川崎市宮前区平1丁目
)
11.5万円 / 管理費7,000円
敷
無料礼
11.5万円3LDK / 65.24㎡ / 3階
賃貸マンション
アスターミキ
)
小田急小田原線 / 向ヶ丘遊園駅 バス12分 聖マリアンナ医大入口下車 徒歩4分
新築 / 3階建
神奈川県川崎市多摩区長沢2丁目18-10
)
14.4万円 / 管理費8,500円
敷
無料礼
14.4万円2LDK / 65.1㎡ / 3階
賃貸アパート
フローラ中野島

南武線 / 中野島駅 徒歩6分
新築 / 2階建
神奈川県川崎市多摩区中野島1丁目16-8

15.5万円 / 管理費5,000円
敷
無料礼
15.5万円2LDK / 64.79㎡ / 2階
賃貸マンション
グリーンサイドホームズ
)
小田急小田原線 / 向ヶ丘遊園駅 徒歩9分
築25年 / 8階建
神奈川県川崎市多摩区枡形6丁目3-60
)
12.8万円 / 管理費8,000円
敷
12.8万円礼
12.8万円2LDK / 60.68㎡ / 地下1階
賃貸マンション
ファミールヴィラ多摩

小田急小田原線 / 向ヶ丘遊園駅 徒歩11分
築29年 / 5階建
神奈川県川崎市 多摩区登戸469

15.5万円 / 管理費10,000円
敷
16.5万円礼
16.5万円3LDK / 60㎡ / 4階
賃貸マンション
フォレストガーデン

南武線 / 中野島駅 徒歩1分
築29年 / 4階建
神奈川県川崎市多摩区中野島3丁目15-3

12.8万円 / 管理費5,000円
敷
12.8万円礼
12.8万円3DK / 58.8㎡ / 3階
賃貸マンション
バードタウン2番館

南武線 / 中野島駅 徒歩9分
築32年 / 6階建
神奈川県川崎市多摩区中野島3丁目5-24

15.5万円 / 管理費8,000円
敷
15.5万円礼
15.5万円3LDK / 79㎡ / 2階
賃貸マンション
ハビテーション向丘
)
小田急小田原線 / 向ヶ丘遊園駅 バス11分 神木本町下車 徒歩6分
築32年 / 5階建
神奈川県川崎市宮前区平1丁目
)
11.5万円 / 管理費7,000円
敷
無料礼
11.5万円3LDK / 65.24㎡ / 3階
賃貸マンション
アスターミキ
)
小田急小田原線 / 向ヶ丘遊園駅 バス12分 聖マリアンナ医大入口下車 徒歩4分
新築 / 3階建
神奈川県川崎市多摩区長沢2丁目18-10
)
14.4万円 / 管理費8,500円
敷
無料礼
14.4万円2LDK / 65.1㎡ / 3階
賃貸アパート
フローラ中野島

南武線 / 中野島駅 徒歩6分
新築 / 2階建
神奈川県川崎市多摩区中野島1丁目16-8

15.5万円 / 管理費5,000円
敷
無料礼
15.5万円2LDK / 64.79㎡ / 2階
賃貸マンション
グリーンサイドホームズ
)
小田急小田原線 / 向ヶ丘遊園駅 徒歩9分
築25年 / 8階建
神奈川県川崎市多摩区枡形6丁目3-60
)
12.8万円 / 管理費8,000円
敷
12.8万円礼
12.8万円2LDK / 60.68㎡ / 地下1階
賃貸マンション
ファミールヴィラ多摩

小田急小田原線 / 向ヶ丘遊園駅 徒歩11分
築29年 / 5階建
神奈川県川崎市 多摩区登戸469

15.5万円 / 管理費10,000円
敷
16.5万円礼
16.5万円3LDK / 60㎡ / 4階
賃貸マンション
フォレストガーデン

南武線 / 中野島駅 徒歩1分
築29年 / 4階建
神奈川県川崎市多摩区中野島3丁目15-3

12.8万円 / 管理費5,000円
敷
12.8万円礼
12.8万円3DK / 58.8㎡ / 3階
同じ最寄り駅 で探す
同じ市区町村 で探す
川崎市多摩区 の賃貸

)
)
