サニー・ハイターⅢ(埼玉県川越市 / 南古谷駅) の賃貸物件情報
募集中のお部屋が2件あります






























1/15
1/15
- 建物
- アパート (木造)
- 築年数
- 築12年 (2014年)
- 駐車場
- 空有 費用: 5,500円 税: 税込み 距離: 0m
- 交通
- 川越線 / 南古谷駅徒歩10分
- 東武東上線 / 新河岸駅徒歩31分
- 住所
- 埼玉県川越市大字木野目
掲載中の物件(2件)
- コンビニエンスストア 463m
- スーパーマーケット 533m
- ドラッグストア 546m
- 建物周辺 1m
その他
- 駐車/駐輪
- 空有 費用: 5,500円 税: 税込み 距離: 0m
- 入居時期
- 2026年6月中旬
- 損保
- 住宅保険: 要
- 保証代行人
- 加入要 会社名: その他 費用: 初回保証料:22,000円月額保証慮:月額総賃料の2.2%または5.5%
- その他費用
- -
- 情報
情報登録日:2026/3/27
情報更新日:2026/5/14
次回更新予定日:2026/5/21
- 備考
- 現況: 空家
この建物からのPick Up
1LDK/3階
1/27
1/27
7.7 万円 / 管理費3,500円
- 敷金
- 無料
- 保証金
- なし
- 礼金
- 7.7万円
- 広さ
- 53㎡
- 階数
- 3階 / 3階建
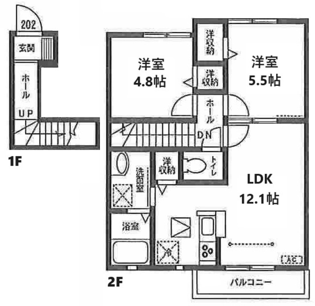
- 間取り
- 1LDK (洋6帖 / LDK12.2帖)
- 向き
- 南
無料で10秒! カンタンお問い合わせ

サニー・ハイターⅢ
敷
無料礼
7.7万円特徴
バス・トイレ別
2階以上
エアコン付き
ペット相談可
駐車場あり
室内洗濯機置場
オートロック
洗面所独立
- 入居条件
- 楽器不可、保証人不要、家賃・初期費用カード決済可、ペット不可、二人入居可
- バス・トイレ
- 追焚機能浴室、浴室乾燥機、給湯、バストイレ別、シャワー付洗面化粧台、温水洗浄便座、洗面所独立
- キッチン
- カウンターキッチン、2口コンロ
- セキュリティ
- 防犯カメラ
- 室内設備
- クロゼット、照明付、ネット使用料不要、エアコン、室内洗濯置、CS、シューズボックス
- 部屋の特徴
- 角住戸、バルコニー、二階以上、最上階
- 共用部
- 駐輪場、バイク置場、敷地内駐車場
- その他の特徴
- プロパンガス、駐車場あり
無料で10秒! カンタンお問い合わせ

サニー・ハイターⅢ
敷
無料礼
7.7万円
)





























