コンフォリア品川EAST1K/5階(東京都品川区 / 北品川駅)の賃貸
1/24
1/24
14.2万円
初期費用を知りたい管理費8,000円
- 敷金
- 14.2万円
- 保証金
- なし
- 礼金
- 無料
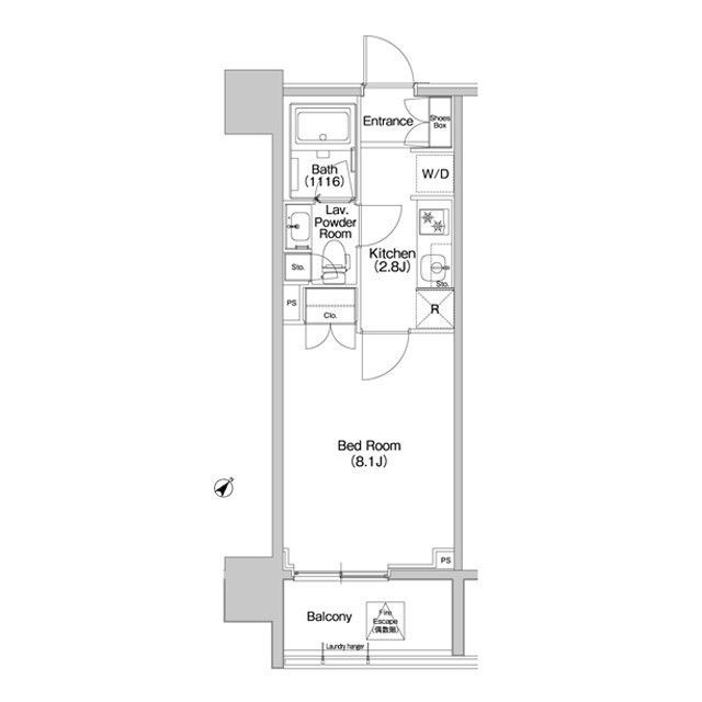
- 広さ
- 25.31㎡
- 階数
- 5階 / 12階建
- 間取り
- 1K
- 建物
- マンション (鉄筋コンクリート)
- 築年数
- 築11年
- 向き
- 南東
- 交通
- 京急本線 / 北品川駅徒歩5分
- 山手線 / 品川駅徒歩11分
- 住所
- 東京都品川区北品川1丁目
コンビニエンスストア 171m
スーパーマーケット 201m
ドラッグストア 479m
まいばすけっと東品川1丁目店 536m
無料で10秒! カンタンお問い合わせ

コンフォリア品川EAST
敷
14.2万円礼
無料特徴
バス・トイレ別
2階以上
エアコン付き
ペット相談可
駐車場あり
室内洗濯機置場
オートロック
洗面所独立
- 入居条件
- 初期費用カード決済可、ペット相談、保証人不要最新の空室状況が知りたい
- バス・トイレ
- 専用バス、専用トイレ、バストイレ別、シャワー、給湯、追焚機能浴室、温水洗浄便座、浴室乾燥機、洗面所独立、オートバス
- キッチン
- ガスコンロ対応、2口コンロ、システムキッチン
- セキュリティ
- オートロック、防犯カメラ
- 室内設備
- エアコン、室内洗濯置、フローリング、光ファイバー、ネット使用料不要、クロゼット、シューズボックス、照明付お部屋の詳しい情報を知りたい
- 部屋の特徴
- バルコニー、二階以上写真を送ってほしい
- 共用部
- エレベーター、宅配ボックス、駐輪場、バイク置場
- その他の特徴
- 都市ガス、外壁タイル張り、デザイナーズ
無料で10秒! カンタンお問い合わせ

コンフォリア品川EAST
敷
14.2万円礼
無料不動産会社からのコメント
通勤通学に大変便利な品川駅徒歩11分・北品川駅徒歩6分の好立地☆ネット無料など設備充実☆★エリア最
沿線や近隣エリアの物件もまとめてご紹介いたします。ぜひお問合せ下さい☆ ■バイク置き場ほか共用設備は有料です。空き状況や詳細はお問合せ下さい。
その他
- 駐車/駐輪
- 近隣 距離: 100m / あり駐車可能な車種や台数を知りたい
- 入居時期
- 2026年6月中旬最新の空室状況が知りたい
- 損保
- 住宅保険: 要
- 保証人代行
- 加入要 会社名: エポスカード 費用: 必須 (RP)(保証料:賃料等の50%(最低2万)、月額保証料:賃料等の1%(更新料無))
- その他費用
初期費用を知りたい鍵交換費用:33,000円
- 情報
情報登録日:2026/4/24
情報更新日:2026/4/24
次回更新予定日:2026/5/8
- 備考
- 現況: 居住中 更新料: 新賃料の1.0ヶ月分 契約期間: 2年 管理人: 日勤 その他交通: 東京モノレール羽田 天王洲アイル駅 徒歩17分 自社管理番号: 6903616
取扱い会社
- 取扱い会社
- 株式会社リブ・マックス 目黒店条件が近い物件も紹介してほしい
- 免許番号
- 国土交通大臣(5)第7032号
- 取引態様
- 仲介
- 所在地
- 東京都品川区上大崎2丁目15-15 伊多喜ビル 5F
- 電話番号
- 03-6409-0707
- 定休日
- 水曜日(年末年始、GW、夏季)
- 所属団体名
- 公益社団法人 全日本不動産保証協会
おすすめ物件 (4件)
賃貸マンション
品川区北品川2丁目 13階建 2023年築

京急本線 / 北品川駅 徒歩9分
築3年 / 13階建
東京都品川区北品川2丁目

13.5万円 / 管理費11,000円
敷
無料礼
13.5万円1K / 20.43㎡ / 11階
賃貸マンション
コンフォリア品川EAST
京急本線 / 北品川駅 徒歩5分
築11年 / 12階建
東京都品川区北品川1丁目20-8
12.4万円 / 管理費8,000円
敷
12.4万円礼
無料1K / 22.63㎡ / 4階
賃貸マンション
ザ・パークワンズ高輪

山手線 / 品川駅 徒歩9分
築4年 / 5階建
東京都港区高輪4丁目

13.9万円 / 管理費10,000円
敷
13.9万円礼
13.9万円ワンルーム / 26.06㎡ / 2階
賃貸マンション
品川区北品川2丁目 13階建 2023年築

京急本線 / 北品川駅 徒歩9分
築3年 / 13階建
東京都品川区北品川2丁目

13.5万円 / 管理費11,000円
敷
無料礼
13.5万円1K / 20.43㎡ / 11階
賃貸マンション
コンフォリア品川EAST
京急本線 / 北品川駅 徒歩5分
築11年 / 12階建
東京都品川区北品川1丁目20-8
12.4万円 / 管理費8,000円
敷
12.4万円礼
無料1K / 22.63㎡ / 4階
賃貸マンション
ザ・パークワンズ高輪

山手線 / 品川駅 徒歩9分
築4年 / 5階建
東京都港区高輪4丁目

13.9万円 / 管理費10,000円
敷
13.9万円礼
13.9万円ワンルーム / 26.06㎡ / 2階
同じ最寄り駅 × 同じ特徴 で探す
同じ市区町村 × 同じ特徴 で探す























)


