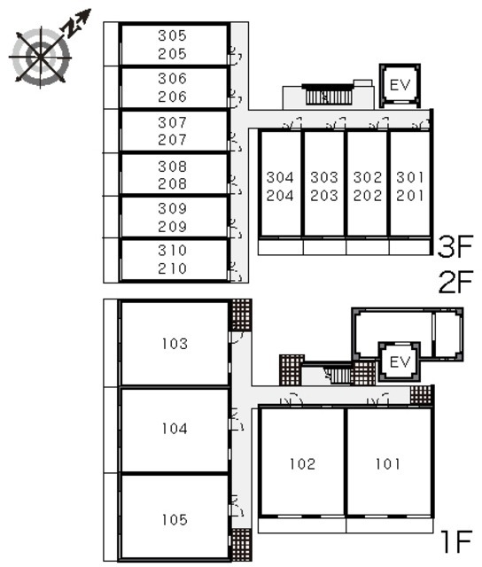
レオネクスト和光1K/2階/205(埼玉県和光市 / 和光市駅)の賃貸
1/27
1/27
8.6万円
初期費用を知りたい管理費5,000円
- 敷金
- 無料
- 保証金
- なし
- 礼金
- 8.6万円
- 広さ
- 26.08㎡
- 階数
- 2階 / 3階建
- 間取り
- 1K
- 建物
- マンション (鉄骨)
- 築年数
- 築15年
- 向き
- 南西
- 交通
- 東京メトロ有楽町線 / 和光市駅徒歩18分
- 東京メトロ有楽町線 / 地下鉄成増駅徒歩30分
- 東武東上線 / 成増駅徒歩31分
- 住所
- 埼玉県和光市下新倉4丁目4-33
ベルク 和光白子店 723m
ローソン 和光下新倉店 398m
ドラッグセイムス 白子店 824m
幸楽苑 和光新倉店 549m
天野医院 451m
和光新倉郵便局 737m
無料で10秒! カンタンお問い合わせ

レオネクスト和光
敷
無料礼
8.6万円特徴
バス・トイレ別
2階以上
エアコン付き
ペット相談可
駐車場あり
室内洗濯機置場
オートロック
洗面所独立
- 入居条件
- 敷金不要最新の空室状況が知りたい
- バス・トイレ
- 給湯、バストイレ別、浴室乾燥機、温水洗浄便座
- セキュリティ
- 防犯カメラ、オートロック
- 室内設備
- 家具付、インターネット対応、エアコン、室内洗濯置お部屋の詳しい情報を知りたい
- 部屋の特徴
- 二階以上、バルコニー写真を送ってほしい
- 共用部
- エレベーター、駐輪場
- その他の特徴
- 駐車場あり、公営水道、下水、外壁タイル張り
無料で10秒! カンタンお問い合わせ

レオネクスト和光
敷
無料礼
8.6万円同じ建物で掲載中の物件 (1件)
不動産会社からのコメント
環境維持費550円/LEONET ベーシックプラン 月額3630円/退去時清掃費41800円環境維持費 1ヶ月550円/引落手数料 524円/短期解約違約金(1年未満の解約は賃料の1ヶ月分)/駐輪場代借主負担(使用時)
その他
- 駐車/駐輪
- 近隣 費用: 17,050円(税込) 距離: 2m / あり駐車可能な車種や台数を知りたい
- 入居時期
- 2026年5月中旬最新の空室状況が知りたい
- 損保
- 住宅保険: 要
- 保証人代行
- 保証人代行: 必須 保証人代行会社: その他 月額賃料等の100%(初回保証料)、2年目以降は1万円/年
- その他費用
初期費用を知りたい鍵交換費:16,500円
- 情報
情報登録日:2026/4/15
情報更新日:2026/4/13
次回更新予定日:2026/4/26
- 備考
- 契約期間: 2年
取扱い会社
- 取扱い会社
- アエラス所沢店 (株式会社アエラス)条件が近い物件も紹介してほしい
- 免許番号
- 国土交通大臣(3)第8522号
- 取引態様
- 仲介
- 所在地
- 埼玉県所沢市日吉町11-20 フジビル 6階
- 電話番号
- 04-2903-2355
- 営業時間
- 10:00~19:00
- 定休日
- 毎週水曜日※29日(祝)は営業
- 所属団体名
- 全日本不動産協会
おすすめ物件 (15件)
賃貸マンション
リヴシティ成増ミュジオ弐番館

東京メトロ副都心線 / 地下鉄成増駅 徒歩7分
築4年 / 5階建
東京都板橋区成増2丁目

10.3万円 / 管理費10,000円
敷
無料礼
10.3万円1K / 25.5㎡ / 5階
賃貸マンション
東京メトロ有楽町線 地下鉄成増駅 11階建 築23年
東京メトロ有楽町線 / 地下鉄成増駅 徒歩1分
築22年 / 11階建
東京都板橋区成増1
8.8万円 / 管理費5,000円
敷
8.8万円礼
8.8万円1K / 25.08㎡ / 6階
賃貸マンション
オーガスタ和光

東武東上線 / 和光市駅 徒歩5分
築20年 / 地上4階地下1階建
埼玉県和光市本町9-45

7.15万円 / 管理費9,000円
敷
7.15万円礼
7.15万円1K / 23.49㎡ / 2階
賃貸マンション
KDXレジデンス成増
東京メトロ有楽町線 / 地下鉄成増駅 徒歩12分
新築 / 7階建
埼玉県和光市白子3
9.95万円 / 管理費10,000円
敷
9.95万円礼
無料1K / 21.97㎡ / 2階
賃貸マンション
Beverly Homes 赤塚公園II
東武東上線 / 成増駅 徒歩18分
築7年 / 地上5階地下1階建
東京都板橋区赤塚8
7.6万円 / 管理費15,000円
敷
無料礼
7.6万円1K / 26.54㎡ / 4階
賃貸マンション
サングレース赤塚A

東京メトロ有楽町線 / 地下鉄成増駅 徒歩23分
築9年 / 6階建
東京都板橋区赤塚6丁目1-25

8.6万円 / 管理費7,000円
敷
8.6万円礼
8.6万円1K / 26.19㎡ / 2階
賃貸マンション
レオネクスト和光

東京メトロ有楽町線 / 和光市駅 徒歩18分
築15年 / 3階建
埼玉県和光市下新倉4丁目4-33

8.6万円 / 管理費5,000円
敷
無料礼
8.6万円1K / 26.08㎡ / 2階
賃貸アパート
セレスティア白子 Ⅰ
)
東京メトロ副都心線 / 地下鉄成増駅 徒歩16分
築2年 / 3階建
埼玉県和光市白子1丁目
)
9.5万円 / 管理費6,000円
敷
無料礼
19万円1LDK / 34.87㎡ / 2階
賃貸マンション
エスパシオ西高島平

東武東上線 / 成増駅 徒歩36分
築13年 / 5階建
東京都板橋区三園2丁目16-1

7.9万円 / 管理費15,000円
敷
無料礼
7.9万円1K / 25.35㎡ / 2階
賃貸マンション
コスモアーバンステイツ
)
東京メトロ有楽町線 / 地下鉄成増駅 徒歩18分
築39年 / 7階建
東京都練馬区田柄2丁目51-17
)
9.3万円 / 管理費10,000円
敷
9.3万円礼
9.3万円1DK / 32.87㎡ / 2階
賃貸マンション
リヴシティ成増ミュジオ弐番館

東京メトロ副都心線 / 地下鉄成増駅 徒歩7分
築4年 / 5階建
東京都板橋区成増2丁目

10.3万円 / 管理費10,000円
敷
無料礼
10.3万円1K / 25.5㎡ / 5階
賃貸マンション
東京メトロ有楽町線 地下鉄成増駅 11階建 築23年
東京メトロ有楽町線 / 地下鉄成増駅 徒歩1分
築22年 / 11階建
東京都板橋区成増1
8.8万円 / 管理費5,000円
敷
8.8万円礼
8.8万円1K / 25.08㎡ / 6階
賃貸マンション
オーガスタ和光

東武東上線 / 和光市駅 徒歩5分
築20年 / 地上4階地下1階建
埼玉県和光市本町9-45

7.15万円 / 管理費9,000円
敷
7.15万円礼
7.15万円1K / 23.49㎡ / 2階
賃貸マンション
KDXレジデンス成増
東京メトロ有楽町線 / 地下鉄成増駅 徒歩12分
新築 / 7階建
埼玉県和光市白子3
9.95万円 / 管理費10,000円
敷
9.95万円礼
無料1K / 21.97㎡ / 2階
賃貸マンション
Beverly Homes 赤塚公園II
東武東上線 / 成増駅 徒歩18分
築7年 / 地上5階地下1階建
東京都板橋区赤塚8
7.6万円 / 管理費15,000円
敷
無料礼
7.6万円1K / 26.54㎡ / 4階
賃貸マンション
サングレース赤塚A

東京メトロ有楽町線 / 地下鉄成増駅 徒歩23分
築9年 / 6階建
東京都板橋区赤塚6丁目1-25

8.6万円 / 管理費7,000円
敷
8.6万円礼
8.6万円1K / 26.19㎡ / 2階
賃貸マンション
レオネクスト和光

東京メトロ有楽町線 / 和光市駅 徒歩18分
築15年 / 3階建
埼玉県和光市下新倉4丁目4-33

8.6万円 / 管理費5,000円
敷
無料礼
8.6万円1K / 26.08㎡ / 2階
賃貸アパート
セレスティア白子 Ⅰ
)
東京メトロ副都心線 / 地下鉄成増駅 徒歩16分
築2年 / 3階建
埼玉県和光市白子1丁目
)
9.5万円 / 管理費6,000円
敷
無料礼
19万円1LDK / 34.87㎡ / 2階
賃貸マンション
エスパシオ西高島平

東武東上線 / 成増駅 徒歩36分
築13年 / 5階建
東京都板橋区三園2丁目16-1

7.9万円 / 管理費15,000円
敷
無料礼
7.9万円1K / 25.35㎡ / 2階
賃貸マンション
コスモアーバンステイツ
)
東京メトロ有楽町線 / 地下鉄成増駅 徒歩18分
築39年 / 7階建
東京都練馬区田柄2丁目51-17
)
9.3万円 / 管理費10,000円
敷
9.3万円礼
9.3万円1DK / 32.87㎡ / 2階



























)
)
)
)