フェニックス武蔵関クアトロ1K/2階/202(東京都練馬区 / 武蔵関駅)の賃貸
1/26
1/26
8.7万円
初期費用を知りたい管理費5,000円
- 敷金
- 無料
- 保証金
- なし
- 礼金
- 8.7万円
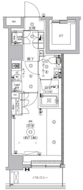
- 広さ
- 20.49㎡
- 階数
- 2階 / 8階建
- 間取り
- 1K
- 建物
- マンション (鉄筋コンクリート)
- 築年数
- 築15年
- 向き
- 西
- 交通
- 西武新宿線 / 武蔵関駅徒歩3分
- 西武新宿線 / 上石神井駅徒歩19分
- 西武新宿線 / 東伏見駅徒歩21分
- 住所
- 東京都練馬区関町北1丁目21-9
エミオ 武蔵関 307m
スーパーマーケットリコス 関町北1丁目店 173m
セブン-イレブン 練馬関町北1丁目店 113m
ウェルパーク武蔵関駅前店 197m
松屋武蔵関店 241m
上智大学石神井キャンパス 747m
無料で10秒! カンタンお問い合わせ

フェニックス武蔵関クアトロ
敷
無料礼
8.7万円特徴
バス・トイレ別
2階以上
エアコン付き
ペット相談可
駐車場あり
室内洗濯機置場
オートロック
洗面所独立
- 入居条件
- ペット相談、敷金不要最新の空室状況が知りたい
- バス・トイレ
- 洗面台、バストイレ別、洗面所独立
- キッチン
- ガスコンロ対応、1口コンロ、システムキッチン
- セキュリティ
- 防犯カメラ、オートロック
- 室内設備
- インターネット対応、エアコン、室内洗濯置、フローリングお部屋の詳しい情報を知りたい
- 部屋の特徴
- 二階以上、バルコニー写真を送ってほしい
- 共用部
- 敷地内ごみ置き場、エレベーター
- その他の特徴
- 駐車場あり、都市ガス、公営水道、下水、外壁タイル張り、分譲賃貸
無料で10秒! カンタンお問い合わせ

フェニックス武蔵関クアトロ
敷
無料礼
8.7万円不動産会社からのコメント
ペット飼育可能(保証金1ヶ月償却)/短期違約1年未満 賃料1ヶ月半年未満 賃料2ヶ月/リノシークラブ(火災保険等) 22000円
その他
- 駐車/駐輪
- 近隣 費用: 15,400円(税込) 距離: 290m / なし駐車可能な車種や台数を知りたい
- 入居時期
- 2026年5月下旬最新の空室状況が知りたい
- 損保
- 住宅保険: 要
- 保証人代行
- 保証人代行: 必須 保証人代行会社: その他 初回:賃料等の50%~、年間:15,000円、引落手数料:330円/月(税込)
- その他費用
初期費用を知りたいその他費用(鍵交換費:3.3万円/他):66,000円
室内清掃費:80,000円
- 情報
情報登録日:2026/3/26
情報更新日:2026/3/24
次回更新予定日:2026/4/5
- 備考
- 契約期間: 2年
取扱い会社
- 取扱い会社
- アエラス所沢店 (株式会社アエラス)条件が近い物件も紹介してほしい
- 免許番号
- 国土交通大臣(3)第8522号
- 取引態様
- 仲介
- 所在地
- 埼玉県所沢市日吉町11-20 フジビル 6階
- 電話番号
- 04-2903-2355
- 営業時間
- 10:00~19:00
- 定休日
- 毎週水曜日
- 所属団体名
- 全日本不動産協会
おすすめ物件 (10件)
賃貸マンション
パティーナ武蔵関
西武新宿線 / 武蔵関駅 徒歩5分
築10年 / 10階建
東京都練馬区関町北2丁目32-3
10.35万円 / 管理費15,000円
敷
10.35万円礼
無料1K / 25.5㎡ / 4階
賃貸マンション
練馬区関町北5丁目 5階建 2025年築

西武新宿線 / 武蔵関駅 徒歩9分
築1年 / 5階建
東京都練馬区関町北5丁目

9.3万円 / 管理費3,000円
敷
9.3万円礼
9.3万円ワンルーム / 20.17㎡ / 2階
賃貸マンション
練馬区 4階建 2024年築

西武新宿線 / 武蔵関駅 徒歩5分
築2年 / 4階建
東京都練馬区関町東1丁目

8.5万円 / 管理費15,000円
敷
無料礼
17万円1K / 24.17㎡ / 2階
賃貸マンション
ジェノヴィア武蔵関公園スカイガーデン

西武新宿線 / 東伏見駅 徒歩10分
築7年 / 10階建
東京都練馬区関町北3丁目4-7

8.4万円 / 管理費10,000円
敷
無料礼
無料1K / 25.72㎡ / 6階
賃貸マンション
リッツ関町

西武新宿線 / 武蔵関駅 徒歩12分
新築 / 5階建
東京都練馬区関町北3丁目2-4

9.8万円 / 管理費4,000円
敷
9.8万円礼
9.8万円ワンルーム / 25.03㎡ / 5階
賃貸マンション
練馬区 8階建 2021年築

西武新宿線 / 東伏見駅 徒歩12分
築5年 / 8階建
東京都練馬区関町北3丁目

9.9万円 / 管理費10,000円
敷
無料礼
無料1K / 26.48㎡ / 5階
賃貸マンション
練馬区関町北 10階建 2016年築
)
西武新宿線 / 武蔵関駅 徒歩3分
築10年 / 10階建
東京都練馬区関町北2丁目29-13
)
9.9万円 / 管理費15,000円
敷
無料礼
9.9万円1K / 25.51㎡ / 4階
賃貸マンション
パティーナ武蔵関
西武新宿線 / 武蔵関駅 徒歩5分
築10年 / 10階建
東京都練馬区関町北2丁目32-3
10.35万円 / 管理費15,000円
敷
10.35万円礼
無料1K / 25.5㎡ / 4階
賃貸マンション
練馬区関町北5丁目 5階建 2025年築

西武新宿線 / 武蔵関駅 徒歩9分
築1年 / 5階建
東京都練馬区関町北5丁目

9.3万円 / 管理費3,000円
敷
9.3万円礼
9.3万円ワンルーム / 20.17㎡ / 2階
賃貸マンション
練馬区 4階建 2024年築

西武新宿線 / 武蔵関駅 徒歩5分
築2年 / 4階建
東京都練馬区関町東1丁目

8.5万円 / 管理費15,000円
敷
無料礼
17万円1K / 24.17㎡ / 2階
賃貸マンション
ジェノヴィア武蔵関公園スカイガーデン

西武新宿線 / 東伏見駅 徒歩10分
築7年 / 10階建
東京都練馬区関町北3丁目4-7

8.4万円 / 管理費10,000円
敷
無料礼
無料1K / 25.72㎡ / 6階
賃貸マンション
リッツ関町

西武新宿線 / 武蔵関駅 徒歩12分
新築 / 5階建
東京都練馬区関町北3丁目2-4

9.8万円 / 管理費4,000円
敷
9.8万円礼
9.8万円ワンルーム / 25.03㎡ / 5階
賃貸マンション
練馬区 8階建 2021年築

西武新宿線 / 東伏見駅 徒歩12分
築5年 / 8階建
東京都練馬区関町北3丁目

9.9万円 / 管理費10,000円
敷
無料礼
無料1K / 26.48㎡ / 5階
賃貸マンション
練馬区関町北 10階建 2016年築
)
西武新宿線 / 武蔵関駅 徒歩3分
築10年 / 10階建
東京都練馬区関町北2丁目29-13
)
9.9万円 / 管理費15,000円
敷
無料礼
9.9万円1K / 25.51㎡ / 4階




























)
)