LIVE CITY903LDK/3階/302(東京都練馬区 / 中村橋駅)の賃貸
1/24
1/24
15.5万円
初期費用を知りたい管理費15,000円
- 敷金
- 15.5万円
- 保証金
- なし
- 礼金
- 15.5万円
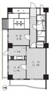
- 広さ
- 76.12㎡
- 階数
- 3階 / 12階建
- 間取り
- 3LDK
- 建物
- マンション (鉄骨鉄筋)
- 築年数
- 築36年
- 向き
- 西
- 交通
- 西武池袋線 / 中村橋駅徒歩1分
- 西武池袋線 / 富士見台駅徒歩10分
- 西武池袋線 / 豊島園駅徒歩21分
- 住所
- 東京都練馬区中村北4丁目2-6
エミオ 富士見台 809m
ザ・ガーデン自由が丘 中村橋店 186m
トモニー中村橋駅店 86m
ココカラファイン くすりセイジョー中村橋駅前店 80m
REINO COFFEE STORE 205m
練馬区立貫井中学校 804m
無料で10秒! カンタンお問い合わせ

LIVE CITY90
敷
15.5万円礼
15.5万円特徴
バス・トイレ別
2階以上
エアコン付き
ペット相談可
駐車場あり
室内洗濯機置場
オートロック
洗面所独立
- 入居条件
- 二人入居相談、子供可最新の空室状況が知りたい
- バス・トイレ
- シャワー、給湯、シャンプードレッサー、洗面台、バストイレ別、オートバス、浴室乾燥機、追焚機能浴室、温水洗浄便座
- キッチン
- ガスコンロ対応、2口コンロ、システムキッチン
- セキュリティ
- 防犯カメラ、オートロック
- 室内設備
- インターネット対応、CATV、ネット使用料不要、エアコン、室内洗濯置、フローリングお部屋の詳しい情報を知りたい
- 部屋の特徴
- 二階以上、角住戸写真を送ってほしい
- 共用部
- 宅配ボックス、エレベーター、駐輪場
- その他の特徴
- 駐車場あり、駐車場2台分、都市ガス、公営水道、下水、外壁タイル張り
無料で10秒! カンタンお問い合わせ

LIVE CITY90
敷
15.5万円礼
15.5万円同じ建物で掲載中の物件 (1件)
不動産会社からのコメント
更新事務手数料0.275ヶ月/家財保険料20000円(2年)/初回月額賃料等の50%800円月額/地下駐車場複数台空有(税込27500円38500円)/退去時違約金(賃料1ヶ月)/室内清掃費用借主負担/CATVでBS、CS視聴可(CATV、BS別途契約要、有償)/駐輪場代借主負担(使用時)
その他
- 駐車/駐輪
- 近隣 費用: 20,950円(税込) 距離: 300m 台数: 駐2台可 / あり駐車可能な車種や台数を知りたい
- 入居時期
- 2026年4月上旬最新の空室状況が知りたい
- 損保
- 住宅保険: 要
- 保証人代行
- 保証人代行: 必須 保証人代行会社: その他 初回:賃料等の50%、月額:賃料等の800円
- その他費用
初期費用を知りたい鍵交換費:19,800円
契約事務手数料:11,000円
- 情報
情報登録日:2026/3/20
情報更新日:2026/3/16
次回更新予定日:2026/4/1
- 備考
- 契約期間: 2年
取扱い会社
- 取扱い会社
- アエラス石神井公園店 (株式会社アエラス.FR)条件が近い物件も紹介してほしい
- 免許番号
- 国土交通大臣(1)第10206号
- 取引態様
- 仲介
- 所在地
- 東京都練馬区石神井町3丁目21-10 セリオ石神井公園 1階
- 電話番号
- 03-6913-2585
- 営業時間
- 10:00~19:00
- 定休日
- 第2・第4水曜日
- 所属団体名
- 全日本不動産協会
おすすめ物件 (1件)
賃貸マンション
LIVE CITY90

西武池袋線 / 中村橋駅 徒歩1分
築36年 / 12階建
東京都練馬区中村北4丁目2-6

15.5万円 / 管理費15,000円
敷
15.5万円礼
15.5万円3LDK / 76.12㎡ / 3階
賃貸マンション
LIVE CITY90

西武池袋線 / 中村橋駅 徒歩1分
築36年 / 12階建
東京都練馬区中村北4丁目2-6

15.5万円 / 管理費15,000円
敷
15.5万円礼
15.5万円3LDK / 76.12㎡ / 3階























